一級建築士事務所エンラージ|八王子市・日野市を拠点に価値のあるリノベーション&リフォームをご提案いたします
カフェ💛エンラージができるまで
最終更新日:2023/5/29 公開日:2021/5/5
最近になって、店舗のリフォームや新規オープンのご相談が増えてきました。
エンラージはこれまでに、飲食店・美容院・歯科医院・こどもクリニック・デイケア・ヨガスタジオ等
たくさんの店舗・事務所のデザインと施工を手掛けて参りましたが
直営のカフェ&レストラン『カフェ💛エンラージ』の施工事例をご紹介させていただきます。
まずこちらが完成写真になります。
施工前はもちろん何もない状態でした。
場所はエンラージ八王子店の目の前で、以前はゴルフショップが入っていました。
左に写っている眼鏡の男性がこのビルのオーナーIさんで、当社社長のお友達です。
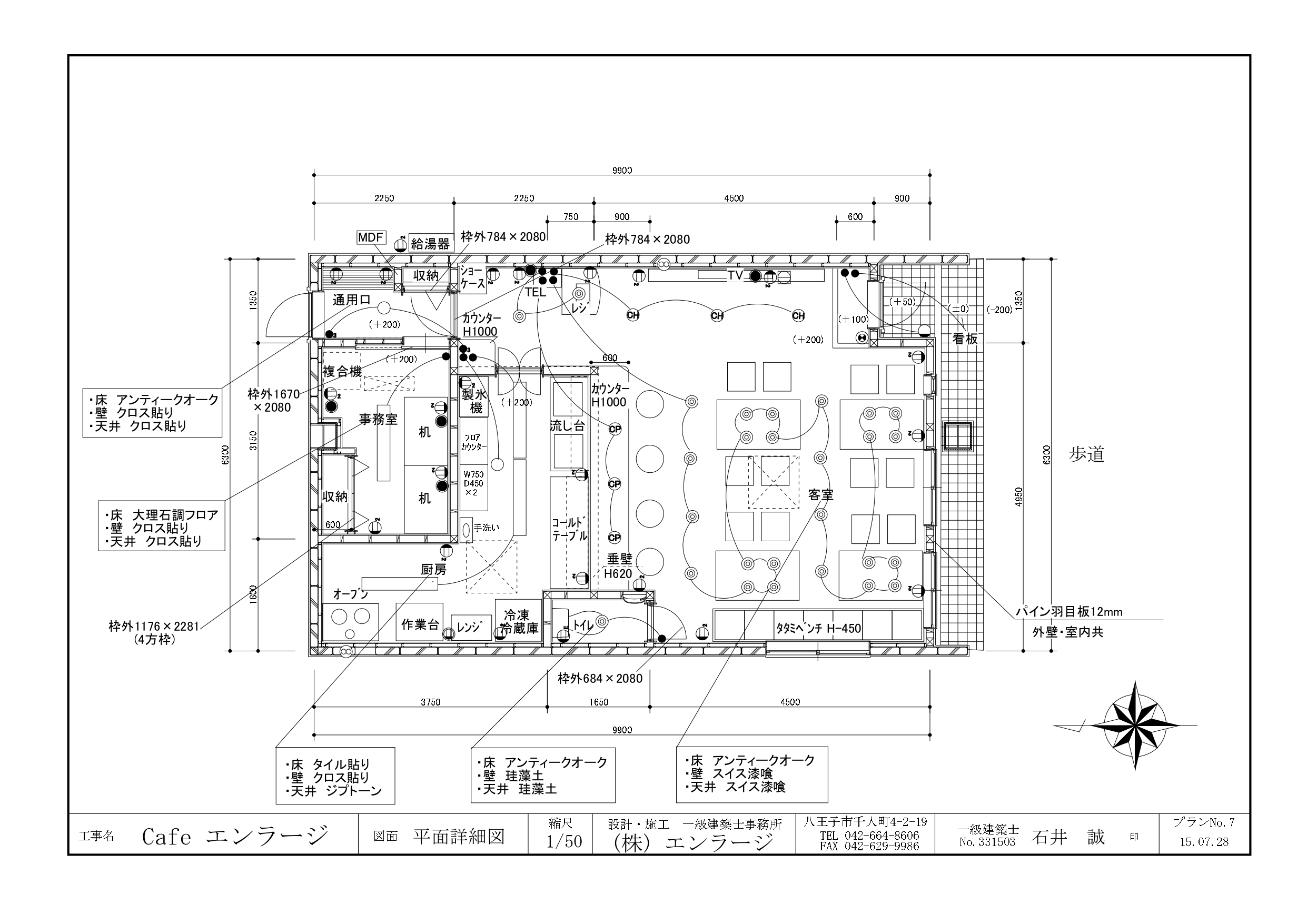
まず設計図を作成しました。
飲食店は保健所の営業許可が必要なので、設計段階で事前相談に行きます。
女性プランナーが図面を基に3Dパースを作りました。
完成写真と見比べてみるとほぼ一緒です。
最初にエアコンの工事から入り
ダイキンの天井カセットエアコン(天カセ)を3台設置しました。
大工さんが床の下地を作っている所です。床は約20cm上げました。
床に下地合板を貼り、その上に床材を貼っていきます。
使用した床は、土足で歩けるアンティークオーク(18mm)の無垢材です。
窓は輸入サッシのマーヴィンを採用しました。
壁の内装はパインの羽目板とスイス漆喰塗りのナチュラルな組み合わせです。
外部にもパインの羽目板を貼りました。
厨房に二層シンクが入りました。
エンラージの社長は元料理人なので、厨房の設計が得意です。
3口のガスコンロの下は火力の強いオーブンになっています。
厨房機器は主に「マルゼン」というメーカーから仕入れました。
パインのテーブルが入り、カフェらしくなってきました。
完成後に保健所と消防署の検査を受けました。
もちろん一発で合格です!
営業許可書が下りたので、いよいよオープンです。
当社では各種営業許可の取得もお手伝いしておりますので、
店舗をご検討の方はお気軽にお問合せ下さい。
◆―――――――◆―――――――◆―――――――◆―――――――◆
〚一級建築士事務所 ENLARGE〛
八王子本店:0120-512-355 (中央線西八王子駅より徒歩5分)
北野支店 :0120-186-202 (京王線北野駅より徒歩4分)
日野支店 :0120-186-203 (中央線日野駅より徒歩3分)
























