施工事例
Seko
こだわりの中古購入リノベーション!
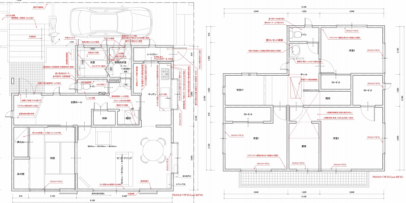
T様は中古物件をご購入され、水廻りを中心としたリフォームがご希望でした。単なる設備交換ではなく一点一点こわだり、さらにデザインもこだわったT様オリジナルのリフォームが完成いたしました。
| 工事内容 | 水廻り設備交換、外構エクステリア、内装工事 |
|---|---|
| リフォーム期間 | 約2ヶ月 |
| 価格 | 約1130万円 |
白いタイルで冷たい印象だった玄関アプローチは、優雅で温かみのある玄関アプローチに生まれ変わりました。









T様、この度は大型リフォームを当社にお任せいただきありがとうございました。その後、住み心地はいかがですか?何度も仕様打合せを重ねて、T様が納得のいく仕上がりにできるよう精一杯努めさせていただきました。工事中はご主人様に毎日お越しいただき工事の様子をご覧いただきました。また工事中に多くの追加工事のご依頼もいただき「周りとうまく納めてくれた!」というT様のお言葉は大変嬉しかったです。