施工事例
Seko
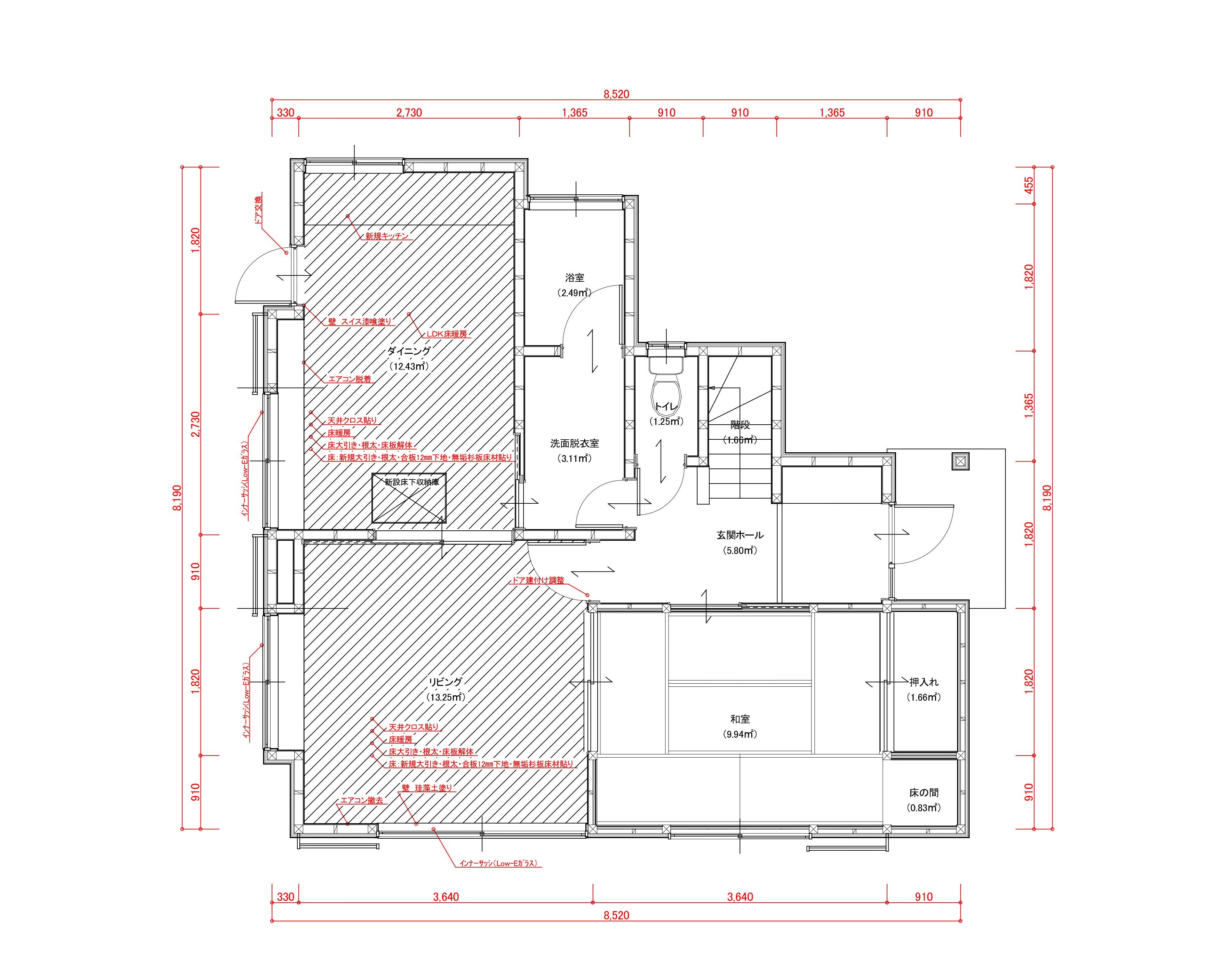
無垢の杉に囲まれた癒しの空間へ
山梨県にある「清泉寮」。そこの無垢の杉に囲まれた空間をとても気に入っていたK様は、いつか我が家で実現したいと長年夢見ていらっしゃいました。
| 工事内容 | LDK耐震改修、床傾斜解消、床暖房設置、キッチン交換、内装工事 |
|---|---|
| リフォーム期間 | 約1ヶ月 |
| 価格 | 約620万円 |
フローリングと腰壁はすべて無垢の杉材を使用。木の温もりや香りが広がる上質なリビングが完成しました。
リビングダイニング(After)
お客様の声
見積りの金額は他社よりやや高かったが、いろいろな点で良心的に工事を進めていただいた。予想以上の、いわばワンランク上のリフォームが実現し、決して高くはなく、むしろ安くさえ感じられる。(ホームプロ『お客様の声』より)









K様、この度は1階のリフォーム工事を当社にお任せいただきありがとうございました。
また「ワンランク上のリフォームが実現」というお褒めのお言葉をいただき心から嬉しいです。
杉の温もりに包まれた素敵な住まいで、これからゆっくり寛いでいただきたいです。 プランナー中島