一級建築士事務所エンラージ|八王子市・日野市を拠点に価値のあるリノベーション&リフォームをご提案いたします
施工事例
Seko
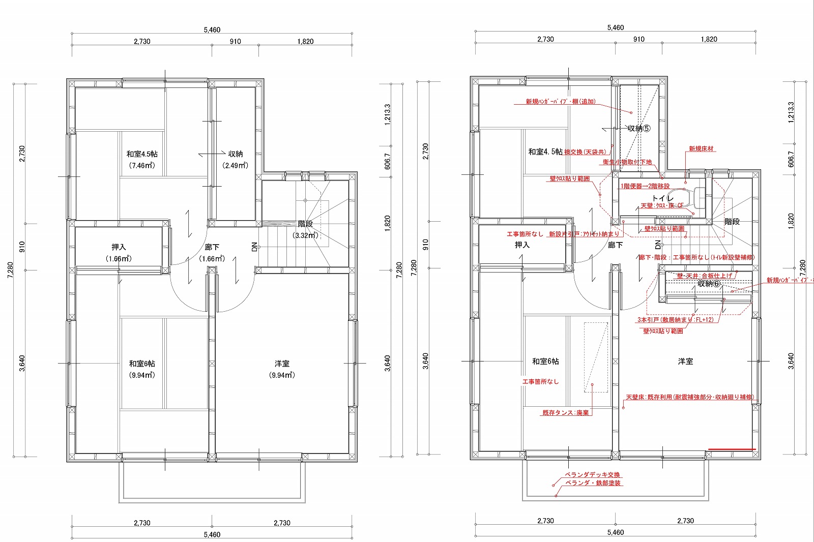
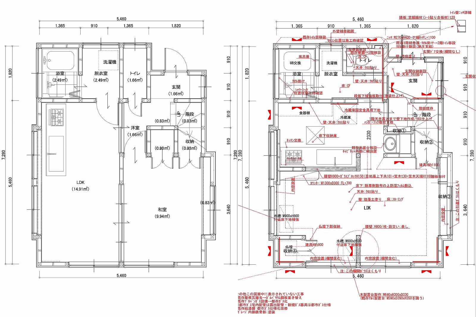
耐震リフォームで家族が安心して暮らせる家に
築34年の中古一戸建てをご購入されたO様。住み始めてからすぐに発生した雨漏りや不具合から、建物の耐震性を心配されるようになりました。耐震補強と間取り変更を含め、安心して暮らせる家にリフォームをしたいとのご要望でした。
| 工事内容 | 耐震補強、間仕切り変更、水廻り交換、内装、屋根葺き替え、内窓設置、玄関ドア交換 |
|---|---|
| リフォーム期間 | 約2ヶ月 |
| 価格 | 約950万円 |
珪藻土の壁、ガラスブロックを埋め込んだキッチンなど、エンラージらしい要素をふんだんに取り入れました。耐震がメインの工事でしたが、デザイン的にも大変気に入って頂けました。
耐震補強
AFTER
水廻り
お客様の声
耐震が一番の不安でしたが、工事中に耐震用のしっかりとした筋交いを見る事ができて安心できました。担当者の方はこちらの要望をしっかり聞いてくれた上で的確なアドバイスをしてくれました。やり取りの電話・メール・見積もり提出等、全てにおいて回答がとても早くて安心できました。工事の仕上がりにも大変満足しています。次回もまたお願いしたいと思います!









O様より、生活する度に使い勝手の良さ、気を使って作って頂いた点を多く感じます。また工夫を凝らし丁寧に作って頂けたので嬉しいとお言葉を頂いたときには心から嬉しかったです。O様にはご自宅の近くに仮住まいをしていただきましたが、工事中も現場に顔を出していただき、耐震工事の現状を見て頂けて良かったです。今後は安心してお過ごしください。