一級建築士事務所エンラージ|八王子市・日野市を拠点に価値のあるリノベーション&リフォームをご提案いたします
無垢床材とスイス漆喰をふんだんに使用した“自然素材リノベーション”
| お名前 | I 様 | 費用 | 約1480万円 |
|---|---|---|---|
| 工事内容 | 中古戸建てリノベーション | ご住所 | 昭島市 |
| 工期 | 約2.5ヵ月 | 間取り | 3LDK+S.I.C |
I様はSUUMOカウンターリフォームよりご縁をいただき、リノベーションのご相談を承りました。戸建て物件を中古購入し、ご入居前に1階・水廻り設備を中心にリノベーションをご計画されていました。ご希望の完工時期を遵守した工程管理に加え、自然素材の風合いを活かした意匠性と機能性の両立を評価いただき、エンラージに施工をお任せいただきました。限られた時間の中でも妥協のない住まいづくりを実現するため、一つひとつの仕様確認・決定を丁寧に進め、無垢床のサンプル比較やショールームでの実機確認に加え、日野支店ショールームで漆喰の調湿性や風合いを実際にご体感いただくなど、I様が『これだ』と確信できる素材選びを大切にしたこだわりの住まいが完成!
デザインパース
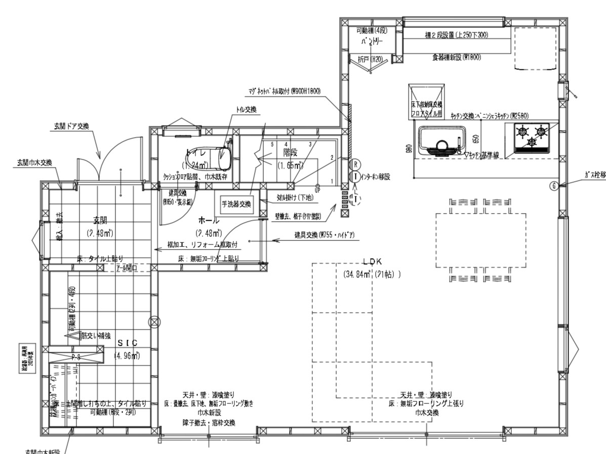
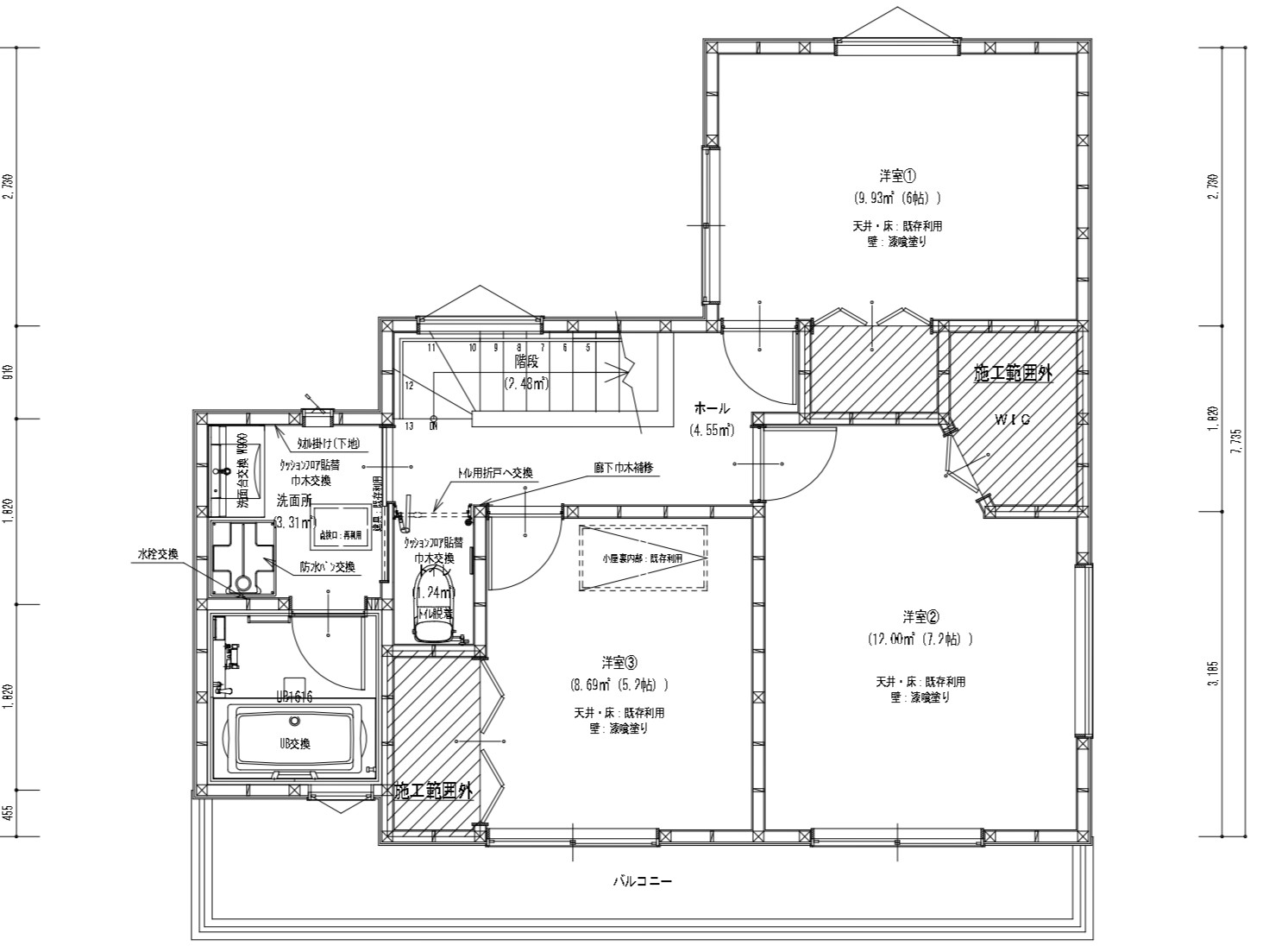
間取り図
ヒノキの無垢床
ウッドワン『国産材シリーズコンビットソリッドJ:ヒノキ』を採用。絹のように滑らかな肌触りと、雑味のない美しい木目が、LDKに洗練された心地よさと温もりを添えています。
間取り変更
かつての和室を洋室へと一新し、LDKと一体化させる間取り変更を行い、遮るもののない広々とした空間へ。家族の気配を常に感じられる開放的な住まいへと変わりました。
大工さんの手仕事
キッチンの背面に設えたオリジナルの棚、そしてキッチン横の格子は大工さんの造作。金物の支えを一切使わず、オールウッド仕様に。棚に施した丸みのある加工が空間に優しいアクセントを与えます。
施工前
担当者より
関連施工事例
-
新築を超えた!中古購入リノベーション!
八王子市 I様 費用:非公開
I様は当社ホームページよりお問い合わせいただいたお客様で、中…

-
中古を買ってお好みのデザインにリノベーション!
八王子市 Y様 費用:約1100万円 [物件代金を含む総額:約5000万円]
Y様は北野支店にご来店頂いたお客様で「中古住宅を購入して、自…

-
中古購入からリノベーションまでワンストップの劇的リフォーム!
八王子市 N様 費用:約2470万円 (外構含む) [物件代金を含む総額:約5000万円]
N様は「中古を購入して、自分好みにリフォームしたい!」という…

-
中古購入からリノベーションまで完全ワンストップ! “耐震基準適合証明”も発行!
八王子市 M様 費用:約1850万円 [中古購入を含む総額:約4200万円]
M様は当社主催のイベント「八王子市民リフォーム祭」にご来場頂…
















































































I様
この度はご新居の工事をお任せくださり、誠にありがとうございます。
諸事情で限られた期間の中でのお打ち合わせ・施工ではありましたが、日野支店での漆喰体験やショールームでの打ち合わせなど、一つひとつの仕様をI様と共に丁寧に積み上げてきた時間は、私共にとっても大変密度の濃い、楽しいひとときでした。完成したご新居は、I様の「本物志向」「こだわり」が宿る素晴らしい住まいになりましたね。お引渡しの際、「イメージ以上の素敵な住まいになった」と仰っていただくことができ、大変うれしく思います。細部までこだわり抜いたこの住まいが、これから時を経て、お子様たちの成長とともにさらに味わい深く育っていくことを楽しみにしております。今後とも末永いお付き合いのほど、よろしくお願い申し上げます。
プランナー 川崎