一級建築士事務所エンラージ|八王子市・日野市を拠点に価値のあるリノベーション&リフォームをご提案いたします
建て替えで実現した理想の暮らし
-
奥様のご希望だった「今風のおしゃれな家」をテーマに、3Dパースを作成してお打合せを進めていきました。
-
完成イメージを3Dパースで確認できたおかげで、外装も内装もI様のイメージ通りの仕上がりになりました。
-
LDKはキッチンからリビングを一望できる見通しのよい空間。壁は真っ白いスイス漆喰で仕上げました。
-
キッチンからみたリビング。建具の色と床の色を対比させたことで引き締まったシャープな印象に。
-
リビングと繋がりをもたせた対面型キッチン <クリナップ>ラクエラI型
-
-
-
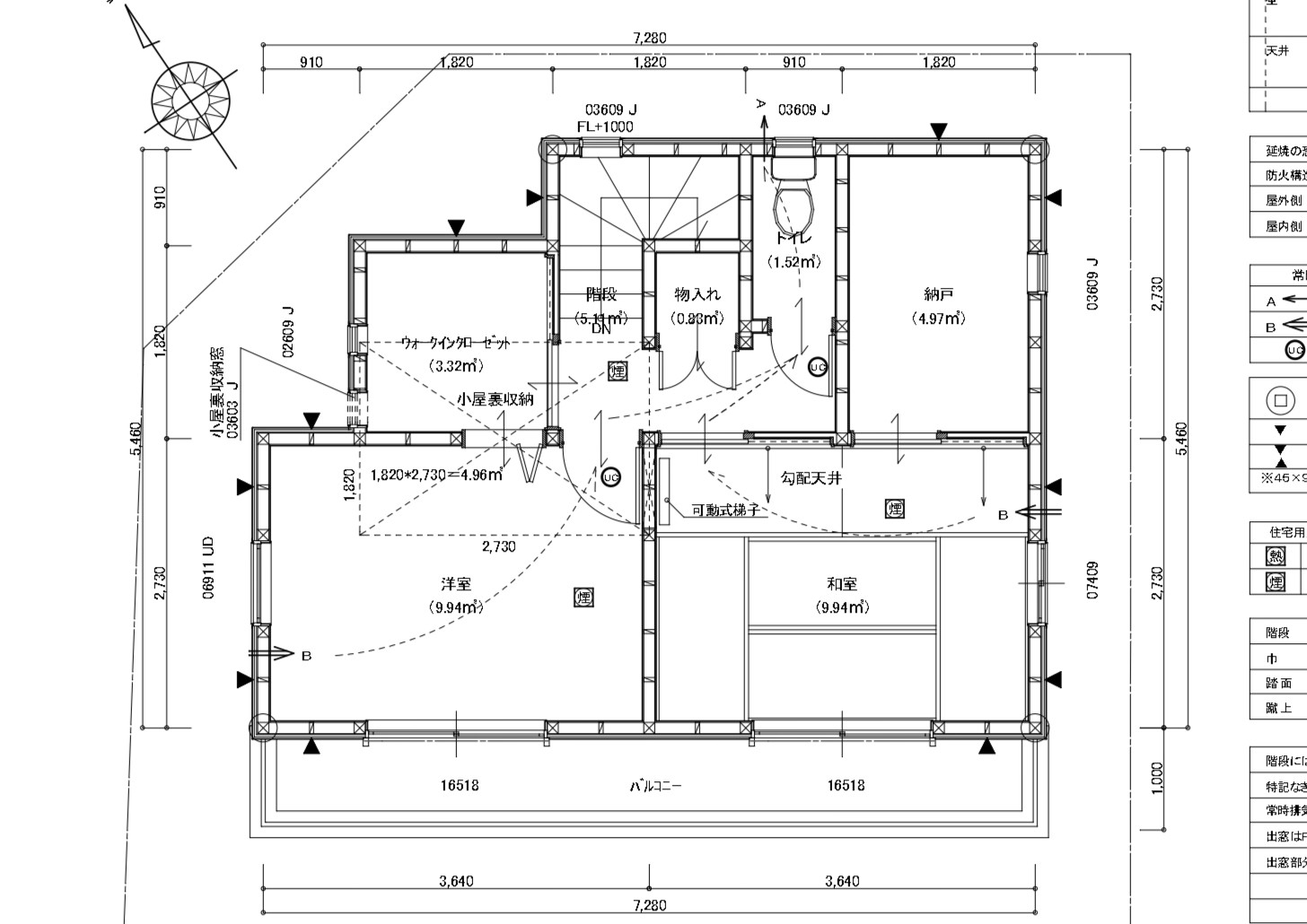
勾配天井で広がりを感じる和モダンな和室
-
意匠的に露出した登梁が和室のアクセントになっています。
-
広々とした小屋裏収納
-
ウォークインクローゼットを設けた洋室
-
-
-
-
<TOTO>サザナ ほっカラリ床や魔法瓶浴槽がついた機能性抜群のユニットバス
-
<TOTO>スリムシリーズ 狭い洗面所でも置ける奥行40㎝のスリムな洗面化粧台
-
<TOTO>ピュアレストQR+ウォシュレットF1A 自動水栓の手洗い器付きです。
-
-
-
| お名前 | I 様 | 費用 | 約1800万円 |
|---|---|---|---|
| 工事内容 | 新築工事(建て替え) | ご住所 | 八王子市 |
| 工期 | 約4ヶ月 | 間取り | 2LDK+S+W.I.C |
当社のイベント「八王子市民リフォーム祭」にお越しくださったI様。家の住み心地に不満をお持ちで「建て替え」か「リフォーム」かで悩まれていました。悩みを解決するためにI様と何度もお打合せを重ねていき、ご要望を全て満たす「建て替えプラン」を大変気に入っていただきました。
デザインパース
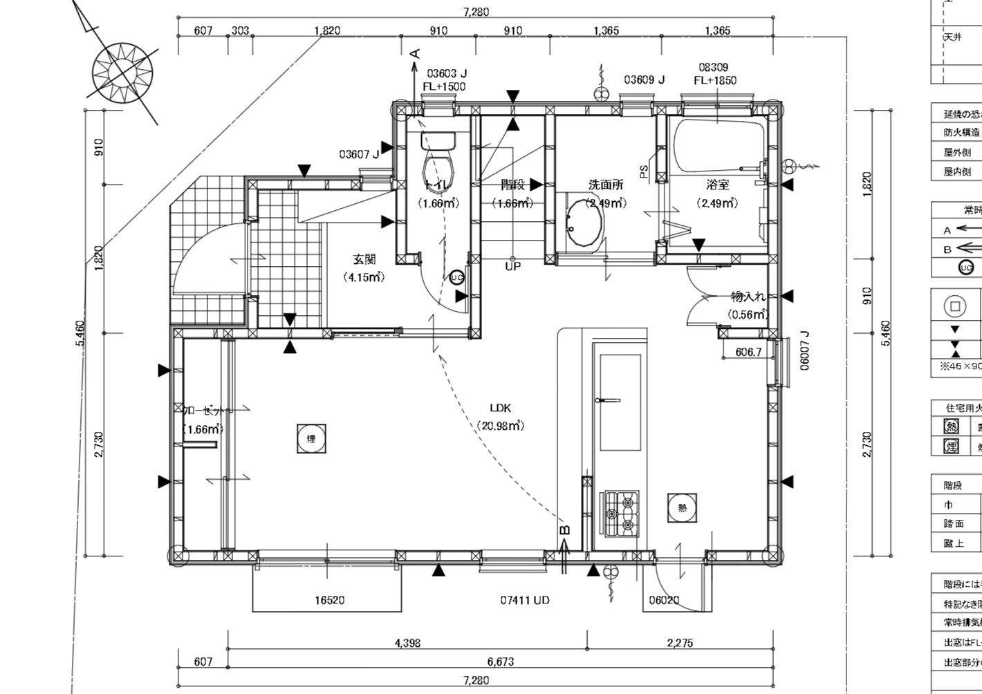
間取り図
キッチンを中心とした1階
1階はキッチンを中心とした間取り。洗面室と浴室を隣接させ、家事効率のよい設計です。
LDKは建具の色と床の色を対比させたことで引き締まったシャープな印象に仕上がりました。
施工前
担当者より
関連施工事例
-
女性プランナーの“夢”がたくさん詰まった“ドリームハウス”♪
立川市 M様 費用:約2000万円
私の家“立川ドリームハウス”が完成しました! 今から4年前、…

-
延床面積202㎡(61坪)の大型二世帯住宅新築(建て替え)工事
八王子市 U様 費用:約4670万円 (外構工事含む)
U様は当社のHPを見てご来店頂いたお客様です。当初はご両親と…

-
ナチュラルでかわいい新築(注文)住宅
八王子市 F様 費用:2280万円
F様は、お子様の出産をきっかけに奥様のご実家の隣に新築を建て…

-
ご家族の夢が詰まったこだわりの注文住宅
八王子市 F様 費用:約2900万円
2番目のお子様の出産を機に、ご実家の敷地内に新築を建てること…






































I様、相見積もりもなく当社を信頼し建て替えという大規模な工事をお任せいただき、ありがとうございました。I様の「自分たちの娘のように感じた。」というお言葉は本当に嬉しく、信頼いただいた責任を強く感じながら喜んでいただけるよう一生懸命に取り組みました。優しいI様ご夫婦のおかげで打合せも毎回楽しかったです。
いつも人とのつながりを大切にするI様の姿が素晴らしく、I様に出会えた事、喜んで頂けた事、とても幸せに思っております。
また何かお困りの事がございましたら、いつでもご連絡くださいね! プランナー 中島