一級建築士事務所エンラージ|八王子市・日野市を拠点に価値のあるリノベーション&リフォームをご提案いたします
ENLARGE オリジナル!中古の注文住宅 “新、古築。”第一弾、堂々完成!
| お名前 | K 様 | 費用 | 約1640万円 [売買総額:約4200万円] |
|---|---|---|---|
| 工事内容 | 中古戸建てのフルリノベーション | ご住所 | 日野市 |
| 工期 | 約3ヵ月 | 間取り | 3LDK |
K様は新築を購入するよりも「中古住宅を購入して、自分好みにリフォームしたい」というご希望でした。当社でご希望に近い中古一戸建てをご案内した所、気に入って下さったので、当社でその物件を一旦買取り、リノベーション後に再販売する“新、古築。”方式でお話を進めました。通常ですと築20年を超える木造住宅は住宅ローン減税が受けられませんが、当社で耐震補強をして『耐震基準適合証明書』を発行すれば、10年間のローン減税が受けられるようになります。そして住宅ローンも新築と同じ金利(0.775%)で借りられます。また売主直売になるので、仲介手数料は掛かりません! K様はメリットが盛り沢山の“新、古築。”をとても気に入って下さいました。
デザインパース
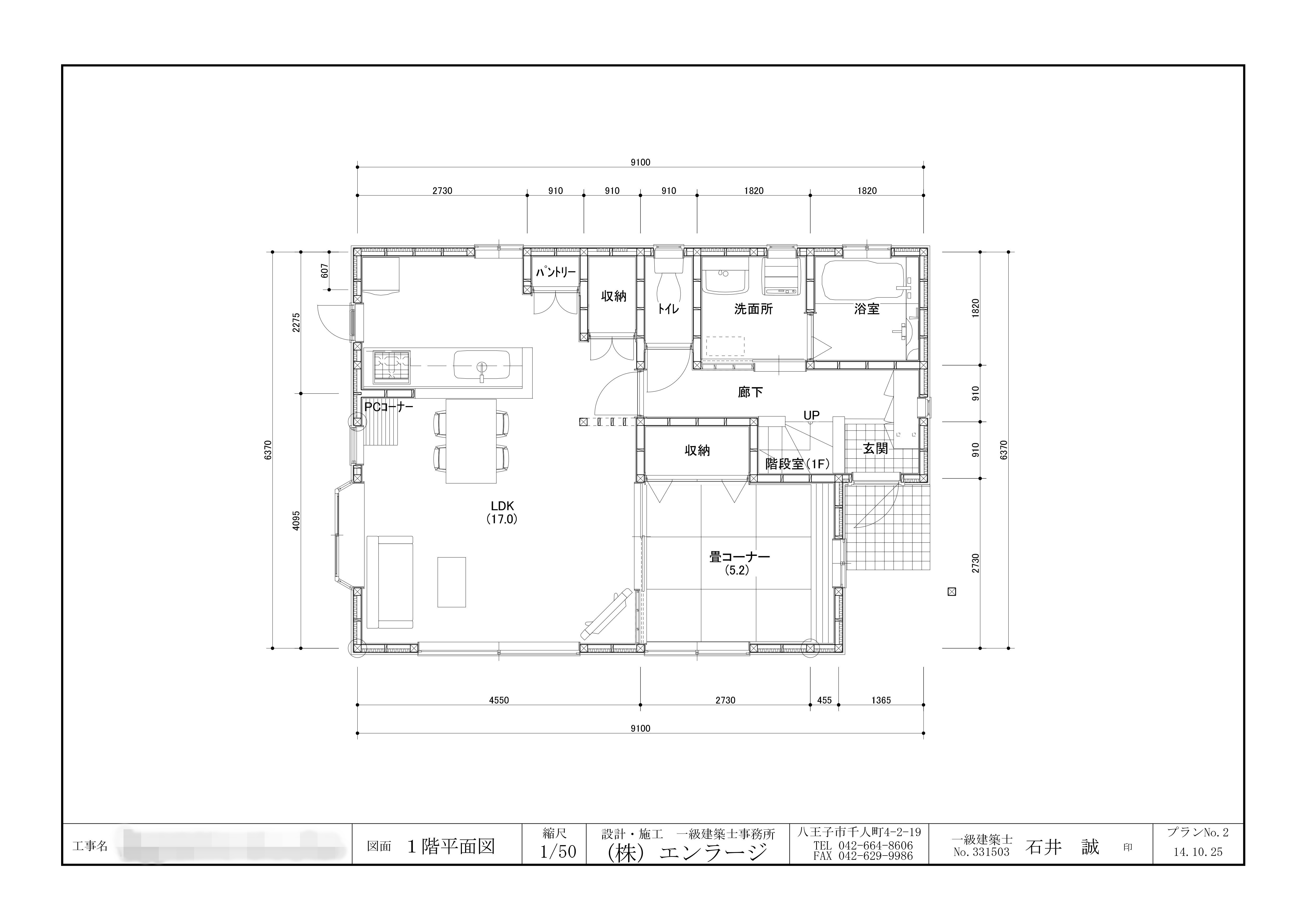
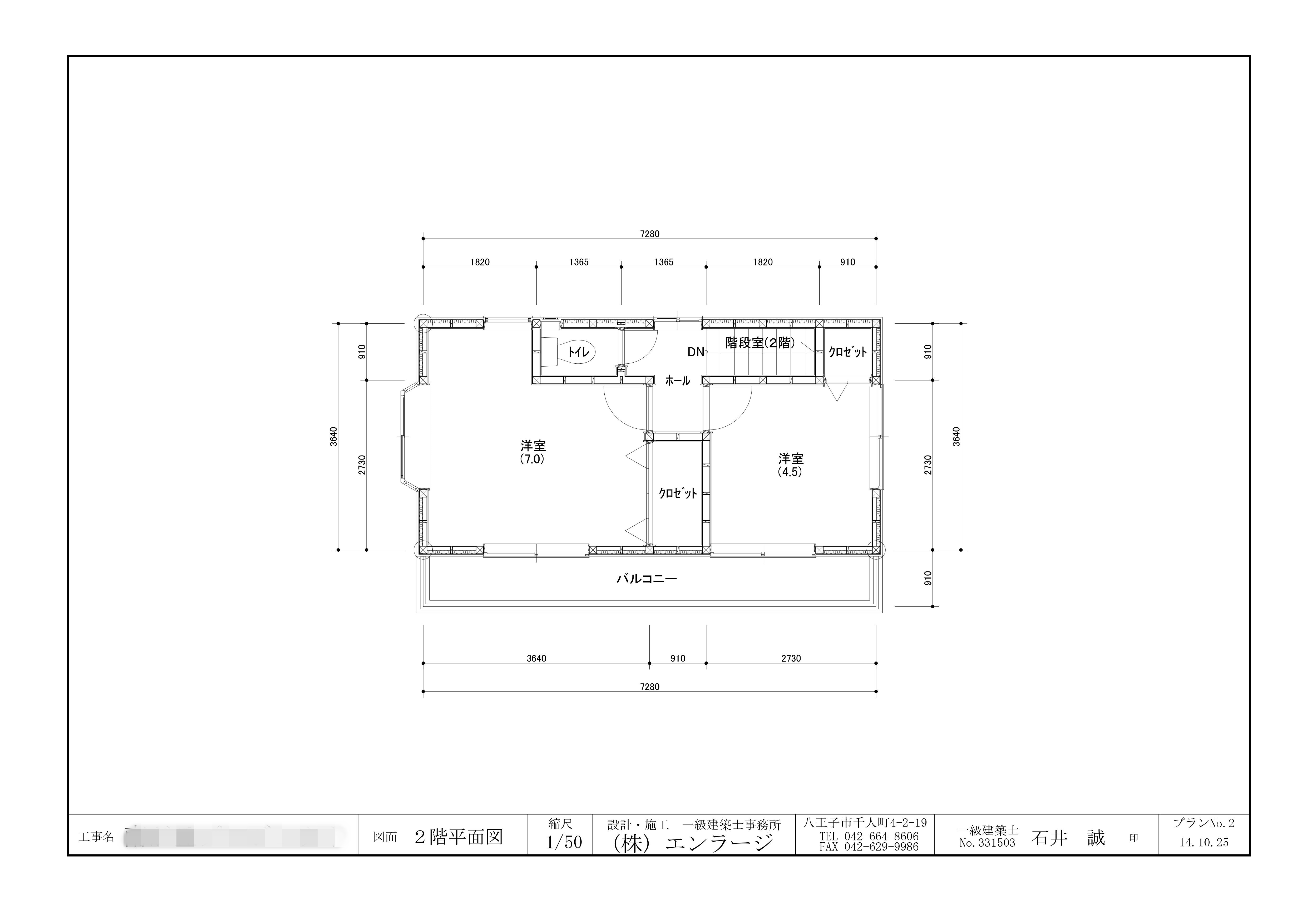
間取り図
自然素材をふんだんに使用したナチュラルな内装
壁は北海道産の良質な珪藻土を使用。床はニュージーランドパインの無垢フローリングを貼って仕上ました。玄関収納や、建具なども無垢パイン材で統一。家に入った瞬間、木の香りに癒されます。
施工前
担当者より
関連施工事例
-
ジャパンディなマンションフルリノベーション
八王子市 A様 費用:約1300万円
A様は当社のInstagramをご覧になり、当社主催の「八王…

-
古き良き時代の面影を遺す、古民家風デザインリノベーション
昭島市 K様 費用:約1960万円
築60年ほどのK様邸。奥様のご実家で経年による老朽化が進んで…

-
劇的に変わるフルリノベーション!耐震強度と断熱性も飛躍的に向上!
八王子市 I様 費用:約2180万円
I様はSUUMOリフォームを通じてお問い合わせいただいたお客…

-
2階建てを平屋にリフォーム!減築で末永く快適に暮らせるお住まいが完成!
八王子市 S様 費用:約2780万円
S様はSUUMOリフォームを通じてお問合せをいただいたお客様…


























































当社は宅建業免許も取得しているので、中古物件探しからリフォームまでワンストップでお任せいただきました。
住宅ローンも提携銀行ローン(三井住友銀行)をご紹介し、1.7%の金利優遇が受けられる事になり、とてもお喜び頂けました。建物はK様のご希望通り、無垢材や珪藻土等の自然素材をふんだんに使用し、お子様にも安心の自然素材住宅へと生まれ変わりました。当社オリジナルの“新、古築。”は、買主様に嬉しいメリットが盛り沢山の新しいシステムです。