一級建築士事務所エンラージ|八王子市・日野市を拠点に価値のあるリノベーション&リフォームをご提案いたします
思い描いたシーンをそのままに。こだわりのフルリノベーション!
| お名前 | T 様 | 費用 | 約1930万円 |
|---|---|---|---|
| 工事内容 | フルリノベーション | ご住所 | 日野市 |
| 工期 | 約3ヶ月 | 間取り |
T様は日野市の広報誌を見てご来店いただいたご夫婦です。老後を見据えてご自宅を暮らしやすくリフォームしたいというご希望をお持ちでした。理想のシーンを沢山思い描いていらっしゃったT様。お打合せを重ね、こだわりの詰まったご新居が完成しました。
メインとなるLDKは、間取り変更によって回遊可能な対面キッチンのある空間に。窓廻りや照明は一新して機能性とデザイン性を兼ね備えたプランでご提案。内装は、T様お好みの生活感を抑えたホテルライクなテイストでコーディネートし、自然素材のスイス漆喰を採用して暖かみの感じられる住空間に生まれ変わりました。
デザインパース
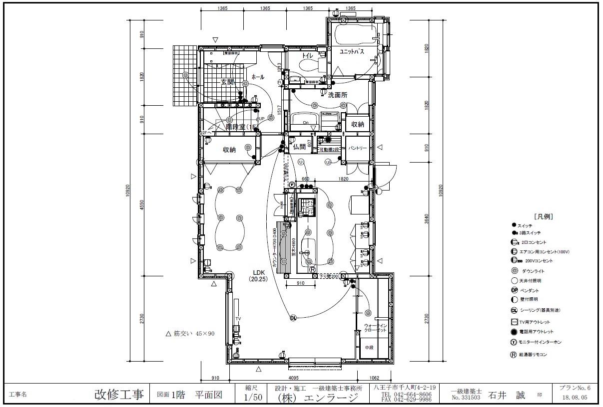
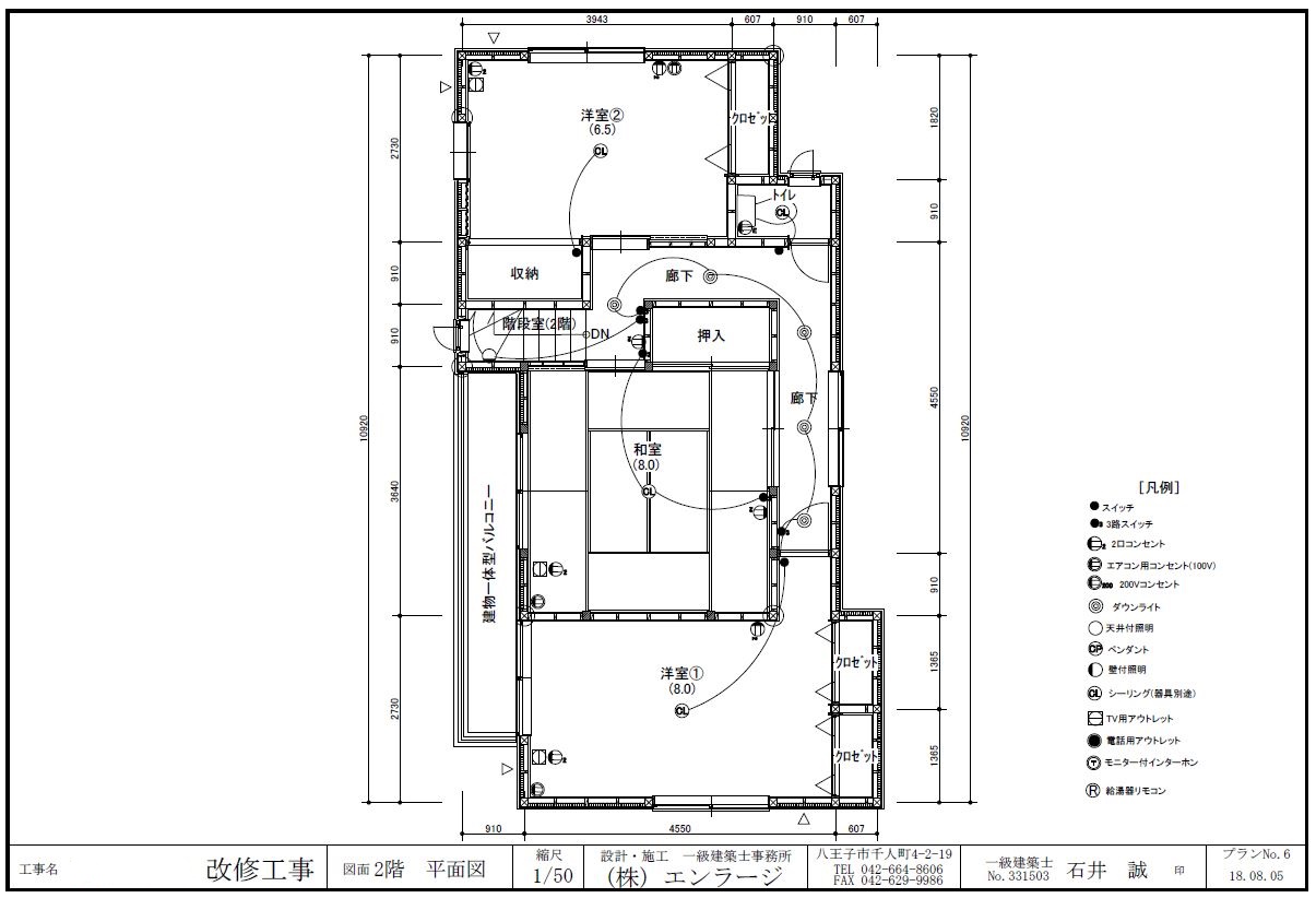
間取り図
自然素材たっぷりのLDK
床には表情豊かな天然木突板フロア、朝日ウッドテック『Live Natural PLUS』。壁には奥様の大好きな“白”が際立つスイス漆喰。間接照明の入ったニッチ底面にはラメ入りのタイルが貼ってあり、きらきら輝きます。
快適で美しい窓廻り
高断熱の樹脂・アルミ複合サッシを、風や日射を考慮してレイアウト。夏も冬も快適な空間となりました。リビングのFIX窓からは公園の桜の木が見え、屋内にいながら季節を感じることができます。元々お悩みだった断熱性の低さや強い西日も解消できました。
目と耳で楽しむ照明
ダウンライトを使用して、全体的にすっきりとした空間になりました。
リビングの照明はスピーカー付きのシーリングライトで、天井から降り注ぐ立体感のある音響が楽しめます。
トイレには壁を照らす間接照明を採用。漆喰塗りの空間に光が拡散することで、明るく清潔感のある空間を演出してくれます。
お孫さんの特別室
以前は子供部屋だった2階洋室は、遊びにいらっしゃるお孫さんが楽しめる内装にしました。ご主人様がお作りになった収納ゾーンは綺麗に塗装して残してフリースペースに。壁に見切り材を設け、下半分を青緑の黒板クロス/上半分と天井を蓄光クロスで貼り分けています。夜、明かりを落とすと満天の星空が広がります★
オープン外構
安全性への配慮で通学路に面したブロック塀を撤去してオープン外構としました。落ち葉のお掃除がしやすいよう床はタイル貼りです。シンボルツリーのシマトネリコがライトアップされると、昼とは違った顔が楽しめます。
施工前
担当者より
関連施工事例
-
二世帯住宅の1階をフルリノベーション
日野市 N様 費用:約1960万円
N様は当社のホームページをご覧になり、お問い合わせくださいま…

-
住みやすさと非日常感をテーマにしたデザインフルリノベーション
相模原市 A様 費用:約2940万円
A様はホームプロを通じてお問い合わせいただいたお客様でした。…

-
古き良き時代の面影を遺す、古民家風デザインリノベーション
昭島市 K様 費用:約1960万円
築60年ほどのK様邸。奥様のご実家で経年による老朽化が進んで…

-
劇的に変わるフルリノベーション!耐震強度と断熱性も飛躍的に向上!
八王子市 I様 費用:約2180万円
I様はSUUMOリフォームを通じてお問い合わせいただいたお客…































































T様
この度は当社に全面リフォームをお任せ下さり、ありがとうございました。
あらためまして、工事完了おめでとうございます!その後皆様お元気でいらっしゃいますか??
T様とは不思議なご縁があったように思います。初めて広告掲載させていただいた日野市の広報誌をご覧になってのご来店、私の家族とお二人の職業の共通点など嬉しい偶然が沢山ございました。
お二人の素晴らしい人柄に心惹かれて、絶対に喜んでいただきたいという思いでやってきましたので、完成の際に「お家で過ごしながら屋外の雰囲気を感じられる、当初の要望通りのお家になりました」と言っていただけたことがとても嬉しかったです。
これから益々、皆様の素敵な思い出が詰まったお住まいとなりますよう心から願っております。
いつまでも笑顔の絶えない素敵なご家族様でいらして下さいね。
日野支店
上野山