一級建築士事務所エンラージ|八王子市・日野市を拠点に価値のあるリノベーション&リフォームをご提案いたします
2×4 (ツーバイフォー)住宅の間取り変更を伴う1階のフルリフォーム
| お名前 | S 様 | 費用 | 約670万円 |
|---|---|---|---|
| 工事内容 | ツーバイフォーの1階フルリフォーム | ご住所 | 八王子市 |
| 工期 | 約1ヶ月 | 間取り |
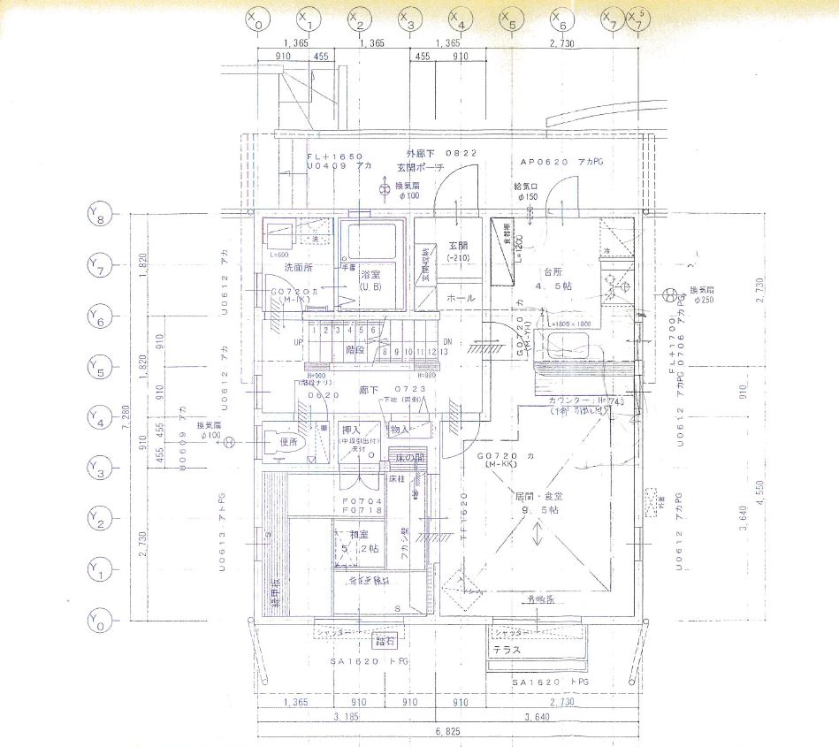
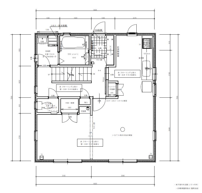
築16年の2×4 (ツーバイフォー)住宅の間取り変更を伴う1階フルリフォーム。和室を洋室に変更してLDKを広げたり、お風呂を1216から1616にサイズアップするなど、2×4(ツーバイフォー)では難しいとされる内容でしたが、壁量計算を行い構造を考慮しながらプランニングをさせていただきました。LDKの床には、奥様こだわりの、幅広タイプの無垢フローリング(ナラ材)を採用し、水まわり商品はすべてTOTOで統一するなど思い通りのリフォームができました。
デザインパース
間取り図
奥様が一目ぼれした建具
建具は、奥様がネットで見つけて一目ぼれした「リクシル・ラシッサDパレット」を採用。キッチンの入口にはチェッカーガラス入りのグリーンペイント、リビングの入口にはアンティークガラス入りのブルーペイントを選びました。
施工前
担当者より
関連施工事例
-
自然素材を使用した理想の住まいにリノベーション!
八王子市 F様 費用:約2430万円(外構含む)
ご主人のお母様との同居を機に、ご実家を全面リノベーションする…

-
築35年のご実家を劇的にリノベーション!
八王子市 H様 費用:約2400万円
閉鎖的で薄暗いキッチンや、昔ながらの使いづらい間取りを変更し…

-
これからの50年を見据えた新築(建て替え)の注文住宅
八王子市 A様 費用:約2500万円 (家屋解体・外構含む)
A様は当初全面リフォームをご希望で、エンラージ八王子本店にご…

-
思い描いたシーンをそのままに。こだわりのフルリノベーション!
日野市 T様 費用:約1930万円
T様は日野市の広報誌を見てご来店いただいたご夫婦です。老後を…





















































S様 この度は1階全面リフォームをお任せいただき、ありがとうございました。S様とのお打ち合わせはとても楽しく毎回ワクワクしていました。「ここは絶対にこだわりたい」との強い思いがあったナラ材無垢のフローリングや、キッチンTOTO「クラッソ」、建具リクシル「ラシッサDパレット」を採用できてよかったです。完成お引渡しのときの嬉しそうなS様の笑顔がとても印象的で、私もとても嬉しい気持ちになりました。素敵に仕上がったお家で、これからも笑顔溢れる毎日をお過ごしください!ありがとうございました。プランナー森松