一級建築士事務所エンラージ|八王子市・日野市を拠点に価値のあるリノベーション&リフォームをご提案いたします
自分スタイルの注文住宅へ“新、古築。”第五弾完成!
| お名前 | T 様 | 費用 | 約1670万円 [売買総額:約3600万円] |
|---|---|---|---|
| 工事内容 | 新、古築。(中古戸建てのフルリフォーム) | ご住所 | 八王子市 |
| 工期 | 約3ヵ月 | 間取り | 4LDK+小屋裏収納 |
T様は30代の若いご夫婦で元気なお子様が3人。お子様たちが自由に走り回れるようなマイホームを持つことが夢でした。HPで当社の“新、古築。”に興味を持ってご来店いただき、さらにマイホームへの夢が膨らみました。当社でご希望のエリアに近い中古物件をご案内したところ、気に入っていただけたので当社で購入。フルリフォームして、T様のスタイルに合った住まいへ生まれ変わりました。さらに『フラット35 S』を利用して、35年間固定金利の住宅ローンを組む事ができました。
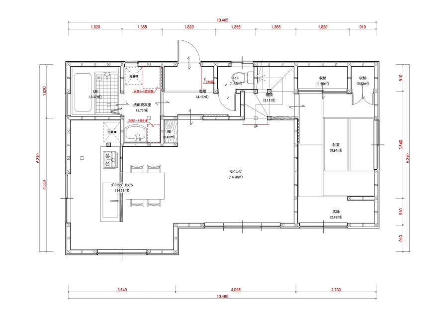
間取り図
家族が集まりやすい“リビング階段”
1階には広々としたLDKを。間仕切りのないワンフロアで家族の憩いの場を広くとりました。また奥様のご希望を叶えて、家族が集まりやすいように“リビング階段”を設けました。
担当者より
関連施工事例
-
ジャパンディなマンションフルリノベーション
八王子市 A様 費用:約1300万円
A様は当社のInstagramをご覧になり、当社主催の「八王…

-
古き良き時代の面影を遺す、古民家風デザインリノベーション
昭島市 K様 費用:約1960万円
築60年ほどのK様邸。奥様のご実家で経年による老朽化が進んで…

-
劇的に変わるフルリノベーション!耐震強度と断熱性も飛躍的に向上!
八王子市 I様 費用:約2180万円
I様はSUUMOリフォームを通じてお問い合わせいただいたお客…

-
2階建てを平屋にリフォーム!減築で末永く快適に暮らせるお住まいが完成!
八王子市 S様 費用:約2780万円
S様はSUUMOリフォームを通じてお問合せをいただいたお客様…











































当社で中古物件を買い取り、リフォーム後に再販する『新、古築。』でT様の夢を叶えることができました。完成した我が家を見て劇的な変わりように『もう、すごいとしか言えない!』と言って下さり、とても嬉しかったです。コーディネートを担当した私も住みたい!と思うほど思い入れのある家に仕上がりました。 プランナー 金子