一級建築士事務所エンラージ|八王子市・日野市を拠点に価値のあるリノベーション&リフォームをご提案いたします
中古物件購入+自然素材デザインリノベーション6
最終更新日:2023/11/30 公開日:2023/11/29
みなさまこんにちは![]()
日野市と八王子市の住宅リフォーム店
一級建築士事務所エンラージ日野支店の村松です!
もう11月も終わり・・
いよいよ今年もあと1か月ですね!
今年のうちにやり切りたいことが
まだまだたくさんあります![]()
日野支店では先日クリスマスツリーを
飾りつけしました✨
とっても可愛く仕上がったので
またブログでご紹介しますね💕
さて今回は中古物件購入+自然素材リノベーション
事例紹介第6弾です!
本日ご紹介するのは八王子市U様邸です。
U様は築35年の中古住宅をご購入され
1階のフルリノベーションをご希望でした。
ご購入された物件が北野支店のお近くでご縁があり
信頼してお任せいただきました!![]()
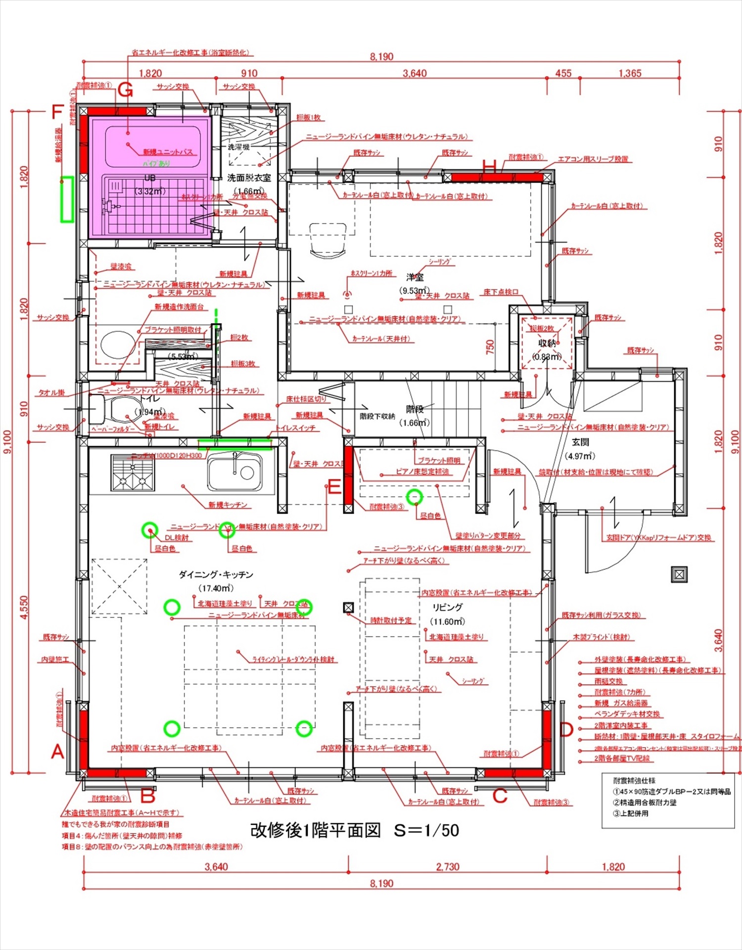
間取りを大幅に変更し、理想のお家に✨
図面
Before
After
リビングと和室を繋げて広いLDKにし、
水廻りの位置も全て変更しました![]()
LDK
リビングダイニング
Before
After
リビングと和室の隔たりを無くし
広々としたLDKに大変身!✨
中央に残った柱を活かしてアーチにした開口は
おしゃれなデザインで目を奪われます![]()
アーチの丸みがお部屋全体を優しい印象にしてくれます![]()
床は無垢のパインフローリングを採用
ウッドワンのピノアースという商品です。
無垢には空気中の水分を吸収・放出する
調湿作用があり、室内の湿度の変動を抑え
結露の少ない快適で健康的な空間を作り出します✨
夏の湿気の多い時期でも無垢の木の床は
さらりとした肌触りで思わず寝ころびたくなります![]()
壁は自然素材スイス漆喰カルクウォールを
塗って仕上げました!
アルプスから採れる最純度の石灰石を原料に
つくられる最高品質の漆喰です。
ホコリを寄せ付けないのでお部屋のお掃除もラクラク✨
天井はオガファーザーで仕上げました。
オガファーザーとはウッドチップの入ったクロスで
自然素材でできた呼吸する紙クロスと呼ばれています✨
呼吸性があり湿気の行き来が出来るため
カビの発生を抑えられます✨
また素材の表面で静電気を発生することがないので
ホコリを寄せ付けません!
アレルギー物質の少ない
快適な室内空気環境を作れる素材です![]()
大きな窓には内窓を設置しました!
断熱性が上がり、一年を通して快適に過ごせます![]()
キッチン
Before
After
クリナップ『ラクエラ』
カップボードもラクエラシリーズで統一し
床や壁に合わせてナチュラルなお色を選びました![]()
リフォーム前の間取りではリビングと
一番離れたところにキッチンとダイニングがあり
孤立している印象でしたが、
上記でご紹介したリビングにキッチンを移動させたことで
お料理中も家族と団らんできる広々LDKに
💕
洋室
お風呂・洗面室・トイレ、各スペースにつながる廊下部分を
まとめて、洋室に変更しました!
床は無垢のパインフローリング
ウッドワンのピノアースです
壁と天井はオガファーザーで仕上げました✨
水廻り設備
元々ダイニングキッチンのあった場所に
お風呂・洗面室・洗濯機置き場・トイレを
まとめました![]()
お風呂
Before
古いタイルのお風呂はひんやりしていて
冬場はとっても寒いです![]()
カビなどのお手入れも大変でした![]()
After
TOTO『サザナ』
ほっカラリ床で入った瞬間から心地よく
冬場もヒヤッとしません!
翌朝にはカラリと乾くのでお手入れもラクですよ✨
浴槽は魔法びん浴槽といって断熱構造でお湯が冷めにくく
暖かさが続きます![]()
お風呂の横には洗濯機置き場
洗面化粧台
Before
After
イタリア製のボウルを組み合わせた造作洗面
ひとつひとつ好きなものを組み合わせた
完全オリジナルです
✨
トイレ
TOTO『ピュアレスト』
少ない水でも汚れを落とすトルネード洗浄と
フチなし形状で毎日のお手入れが断然ラクです!
カラーはパステルピンク💕
洗面室・トイレの内装は
無垢床・スイス漆喰・オガファーザー
すべて自然素材です💕
玄関
Before
After
玄関を開けた瞬間から
明るくナチュラルなテイストで素敵✨
気分も明るくなりますね!
シューズボックスをサイズアップし
収納も新設しました!
玄関ドアは
飾り格子をそのまま生かして
新しい玄関ドアに交換しました。
Before
After
飾り格子ととてもマッチしていておしゃれです![]()
こちらの玄関ドアは木調のアルミ製なので
メンテナンスフリーで長く使用できます!
大幅な間取り変更で生活しやすいお家に
さらに無垢の床やスイス漆喰などで
心地よい上質な空間を実現しました💕
自然素材にご興味をお持ちの方
エンラージは全店自然素材をふんだんに採用した
SRになっておりますので
実際に自然素材の良さを体感していただけます![]()
カタログやサンプルも取り揃えておりますので
ぜひ、お気軽にご来店ください!
スタッフがご案内いたします💕
日野支店ショールームアドバイザー 村松 悠🍒
=======*========*=======*=======*=======*
【 一級建築士事務所ENLARGE 】
八王子店:0120-512-355 (中央線西八王子駅より徒歩5分)
北野支店:0120-186-202 (京王線北野駅より徒歩4分)
日野支店:0120-186-203 (中央線日野駅より徒歩3分)
お問合せ:https://www.enlarge.tokyo/contact
来店予約:https://www.enlarge.tokyo/raiten
資料請求:https://www.enlarge.tokyo/book
インスタグラム:https://www.instagram.com/enlarge.reform



































