一級建築士事務所エンラージ|八王子市・日野市を拠点に価値のあるリノベーション&リフォームをご提案いたします
ティファニーブルー調のクロスが映える、洗面所・浴室リフォーム
公開日:2022/1/22
皆様こんにちは![]()
本日は洗面所・浴室をメインにリフォームを行ったT様邸のご紹介をさせて頂きます![]()
T様からのご相談内容は、浴室のシャワールーム化、洗面所の拡張、造作棚・造作洗面設置、乾太くん新設、キッチン袖壁の内装等です。
2×4住宅のため施工が難しい箇所はありましたが、これまでの施工経験・実績からしっかりと工事を行うことができました![]()
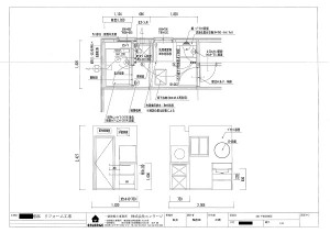
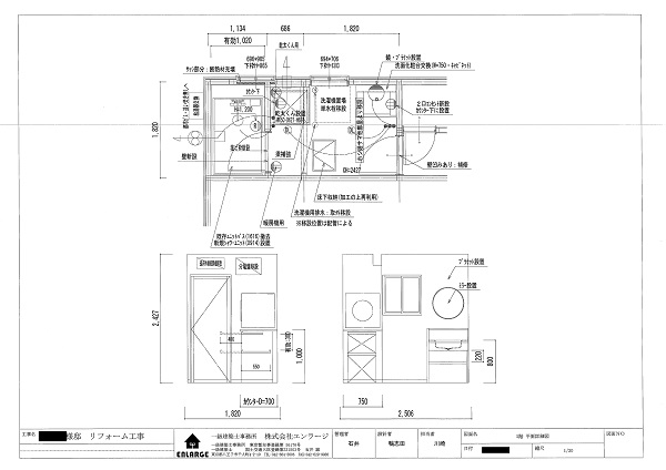
こちらは工事前の様子です。
図面・イメージパースを基に施工していきます。
ここからは工事中の様子です![]()
浴室を解体・撤去し、必要な箇所に断熱材の充填を行い、新たに間仕切り壁の造作をします。
新たな間仕切りの造作工事後はシャワールームの設置と内装工事、乾太くんの設置をしていきます。
内装工事では、T様こだわりのクロス・床材(長尺シート)を施工します![]()
造作棚と造作洗面の製作は、職人さんの工房で行いました。
キッチン袖壁にはタカラスタンダード社のホーロー内装材『エマウォール』を施工していきます。
ここからは完成後のT様邸のご紹介です![]()
T様のこだわりが詰まった、ティファニーブルー調のクロスが映える洗面所に生まれ変わりました![]()
デザインはもちろん、生活動線・機能性・清掃性にもこだわった空間です![]()
![]()
造作洗面には、吉本産業社のハイバックボウル一体型カウンターとアイカ工業社のメラミン化粧板を使用。
ハイバックボウル一体型カウンターは必要寸法に合わせて特注オーダーいたしました。
シャワールームは洗面所の雰囲気から打って変わり、ラグジュアリーでホテルライクな空間となっています。
こちらのシャワールームはLIXIL社の製品で、足元からの冷えを軽減する床『サーモフロア』を採用頂きました。
T様、この度はご自宅のリフォームのお手伝いをさせて頂き、誠にありがとうございます。
お打合せもリフォームも楽しんで頂きたいと思っておりましたが、私自身とても楽しく担当させて頂きました![]()
サンプルで製作されたミニチュア模型、とっても可愛いかったです![]()
計画段階では構造材の補強により凹凸が生じる予定でしたが、大工さんの技術力により最小限で施工することができ、スッキリした空間になりましたね。
私共の2×4住宅リフォームの施工実績と技術に期待して工事をお任せ頂いておりましたので、お応えすることができて良かったです![]()
お住まいのことでお困りのことがございましたら、是非いつでもお声がけくださいませ。
+‥‥‥‥‥‥‥‥‥‥‥‥‥‥‥‥‥‥‥‥‥‥‥‥‥‥‥‥‥‥‥‥‥‥+
【 一級建築士事務所ENLARGE 】
八王子本店:0120-512-355 (中央線西八王子駅より徒歩5分)
北野支店 :0120-186-202 (京王線北野駅より徒歩4分)
日野支店 :0120-186-203 (中央線日野駅より徒歩3分)
お問い合わせフォーム:https://www.enlarge.tokyo/contact
来店予約:https://www.enlarge.tokyo/raiten
資料請求:https://www.enlarge.tokyo/book
+‥‥‥‥‥‥‥‥‥‥‥‥‥‥‥‥‥‥‥‥‥‥‥‥‥‥‥‥‥‥‥‥‥‥+
日野支店:かわさき🐰































