一級建築士事務所エンラージ|八王子市・日野市を拠点に価値のあるリノベーション&リフォームをご提案いたします
全面リフォーム+外構工事が始まりました!
最終更新日:2021/9/7 公開日:2021/9/5
秋になり、エンラージ各店では全面リフォームの施工が進んでいます。
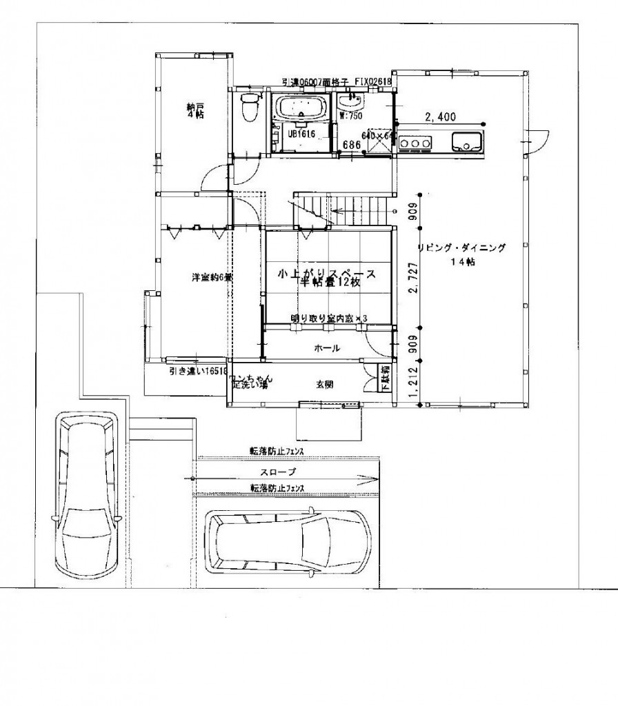
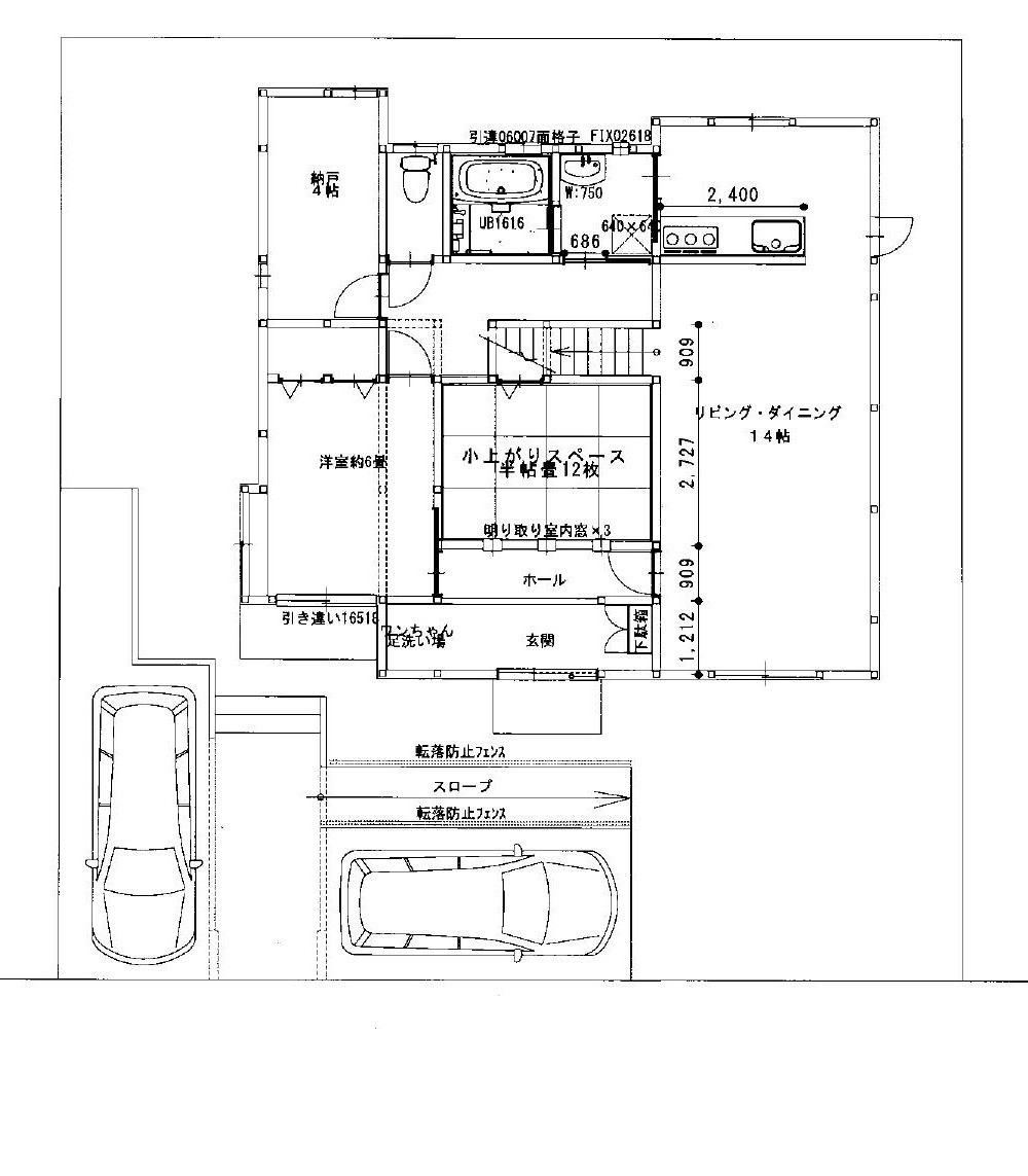
先週着工した八王子市K様邸は、全面リフォーム+外構工事の現場になります。
K様邸は八王子市の高級住宅街にある立派なお宅です。
施主のK様は市内で美容室を経営されていて、当社で店舗をリフォームさせて頂いたOB様です。
今回の工事ではまず外構工事で2台分の駐車場を確保してから
建物のリフォームに着手する予定です。
重機を使ってダイナミックに解体工事が始まりました。
外構工事というよりは、土木工事に近い感じです。
コンクリートのガラも結構な量になりました。
道路面の擁壁まで解体が終わりました。
これから建物の施工に入り、完成後に外構を仕上げる予定です。
エンラージには腕の良い外構職人さんが揃っておりますので、
外構・エクステリア・ガーデニングをお考えの方もお気軽にご相談下さい![]()
八王子店 施工管理 成川
========*========*=======*=======*=======*=======*========*========*
【 一級建築士事務所ENLARGE 】
八王子本店:0120-512-355 (中央線西八王子駅より徒歩5分)
北野支店 :0120-186-202 (京王線北野駅より徒歩4分)
日野支店 :0120-186-203 (中央線日野駅より徒歩3分)
お問い合わせフォーム:https://www.enlarge.tokyo/contact
来店予約:https://www.enlarge.tokyo/raiten
資料請求:https://www.enlarge.tokyo/book
*========*========*=======*=======*=======*=======*========*========*
カテゴリー:八王子店 |













