一級建築士事務所エンラージ|八王子市・日野市を拠点に価値のあるリノベーション&リフォームをご提案いたします
念願のウッドデッキ・パーゴラの完成✨
最終更新日:2024/10/9 公開日:2021/8/26
皆様こんにちは![]()
まだまだ暑い日々が続きますが、秋の虫の音が聞こえたり、夜は涼しかったりと、少しづつ秋の気配を感じるようになってきましたね。
私は四季の中で秋が一番好きなので、今から秋がくるのがとても待ち遠しいです![]()
さて、本日の北野支店ブログでは外構・エクステリア工事のご紹介をいたします![]()
今回ご紹介する工事はウッドデッキ・パーゴラの設置をメインとした工事です。
ご依頼主のO様はご自宅の新築当初からお庭の工事をしたいとお考えでした。
なかなか実現する機会がなかったそうなのですが、コロナ禍でおうち時間が増えたこともあり、工事を決断されたそうです![]()
奥様の8年越しの夢を叶えるため、設計担当者や職方の皆様と力を合わせ、精一杯取り組ませて頂きました。
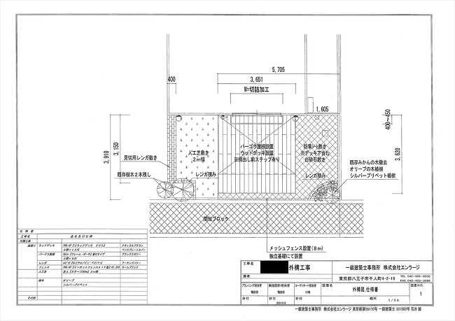
工事前のお庭の状態と施工図です。
以前は畑として活用されていたらしく、お庭の土はとても良質なものでした![]()
良い土な分、草が生えやすく成長が早いため、お手入れはとても大変そうです![]()
今回の工事ではお庭の手入れがしやすくなるよう、草木を抜き、防草シートを設置し、しっかりと白砕石を撒いています。
見切り用のレンガ材や花壇、人工芝、転落防止用フェンスの設置も行います![]()
フェンスは目隠しも兼ねています。
O様がフェンス設置後にさっそくフェイクグリーンを付けてくださっていました![]()
これだけでも印象がかなり変わりましたね![]()
全体的にスッキリとし、お手入れがしやすくなりました。
ここからさらにウッドデッキとパーゴラの工事を行います。
ウッドデッキには、腰掛兼用の段を設けました。
LDKの床からの段差も考慮した高さになっており、安全かつ使いやすいように施工されています。
また、既存の雨樋と干渉する箇所があったのですが、職人さんがうまく加工して下さいました![]()
工事期間が梅雨時季や真夏日と重なり大変でしたが、無事に工事を終えることができました。
それでは、完成後のお庭の様子をご覧下さい![]()
![]()
奥様の長年の夢とこだわりが詰まった、とても素敵なお庭の完成です![]()
ウッドデッキとパーゴラはあえて同系色では揃えず、アクセントとなるように色決めを行いました。
見切りや花壇に使用しているレンガは、ご自宅の雰囲気やウッドデッキ・パーゴラとも調和するよう、お選び頂いております。
花壇の形状は施工前にもお打合せしておりましたが、施工中も職方とご相談頂き、曲線が美しいナチュラルな仕上がりとなっています![]()
O様、この度は長年の夢であった外構・エクステリア工事を私共にお任せ頂き、誠にありがとうございます![]()
また、お客様アンケートではとても嬉しいお言葉を頂きありがとうございました![]()
8年間の想いが詰まった工事でしたので、必ずご満足頂けるようにと、設計担当者・職方と打合せを重ね工事に挑みました。
天候や商材の納期の関係で予定よりも少し完成が延びてしまいましたが、お子様の夏休み前にお引渡しをすることができて安心しました。
ご家族でのプールやバーベキュー、ハンモック等、お庭で過ごす時間を楽しんで下さいね![]()
今後ともよろしくお願い致します。
*========*========*=======*=======*=======*=======*========*========*
【 一級建築士事務所ENLARGE 】
八王子本店:0120-512-355 (中央線西八王子駅より徒歩5分)
北野支店 :0120-186-202 (京王線北野駅より徒歩4分)
日野支店 :0120-186-203 (中央線日野駅より徒歩3分)
お問い合わせフォーム:https://www.enlarge.tokyo/contact
来店予約:https://www.enlarge.tokyo/raiten
資料請求:https://www.enlarge.tokyo/book
*========*========*=======*=======*=======*=======*========*========*
北野支店:かわさき🐰


























