一級建築士事務所エンラージ|八王子市・日野市を拠点に価値のあるリノベーション&リフォームをご提案いたします
水廻り全交換と内装工事が完成しました!
公開日:2021/7/17
皆さまこんにちは。あっという間に7月も後半ですね![]()
![]()
時間の速さを感じている日野支店の前田です![]()
夏は自然とパワーがみなぎり、大好きな季節ですが
唯一、苦手なものとしてはこの時期に多い怪談ですね。
トイレとお風呂に行けなくなってしまうので、すぐにチャンネルを変えます!
私の話はさておき
先月、キッチン・浴室・洗面・トイレの水廻り交換を
させていただいたお家の工事が完了いたしました(*ノωノ)![]()
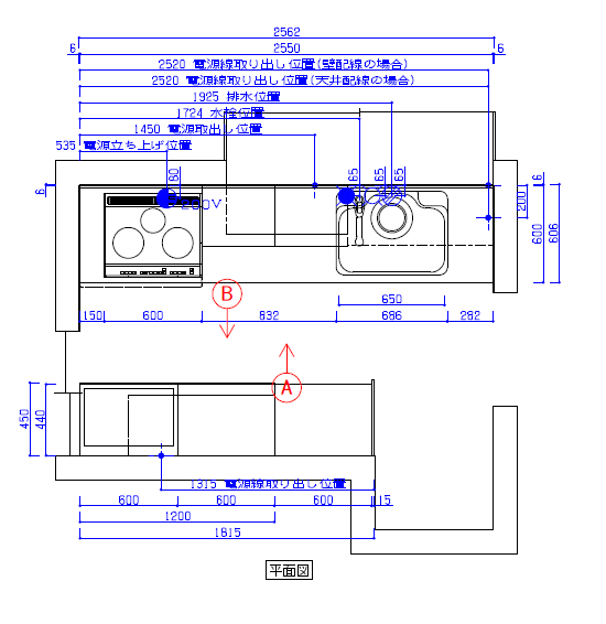
まずはキッチンから
●アフター
●ビフォーがこちら
お話をお伺いした際「キッチンがせまく使いずらい」とお悩みだったので
当初、間取り変更のご提案もあったのですが
色々な観点も含めて考慮した結果もとの位置での交換となりましたので
キッチンの奥行きサイズは60㎝を採用いただきました![]()
60㎝でも充分なほどのとても収納力のあるキッチンです。
奥さまの過ごし方などを思案して生活に合ったキッチンを選定しました![]()
実は食洗機をつけるか迷われていましたが
『将来、付けれるようにしよう』と、ショールームの方とも念入りに相談して
シンク横に据え置き食洗機が置ける幅を確保していただきました![]()
お風呂に関しては、寒さを気にされていたのでTOTOさんの『サザナ』に交換。
ここでもこだわりをプラスしております(#^^#)
●ビフォー
●アフター
浴槽には保温効果の高い魔法びん浴槽+断熱構造のほっカラリ床に
ユニットバス全体には断熱材フルパックをご採用いただきました![]()
浴室換気暖房乾燥機も付けていただいたので
通年快適なお風呂となり、段差も解消されて安全です![]()

お風呂の解体時は腐食もあまりみられず、比較的綺麗だったのですが
あるはずの柱がなく、また隣の筋交いも心配な施工をされていたので…
一級建築士の設計で大工さんがしっかりと入れ直しました。
これで構造体も安心していただけます![]()
北側の洗面・トイレも交換、またクロスには消臭効果・吸放質性のあるクロスを使用しました。
●洗面台ビフォー
●アフター
●トイレビフォー
●アフター
その他には部分的・全体的に天井と壁のクロスを貼り替えていただき
とても明るいLDKとなりました![]()
![]()
住みながらでの水廻り全交換であったため、
大変ご迷惑やご不便をかけてしまったのにも関わらず
いつも笑顔で迎えて下さった人柄が素敵なご夫婦にお会い出来て
工事に携われて嬉しかったですし、なによりお喜びいただけて本当に良かったです!!
これからも末永くよろしくお願いいたします![]()
![]()
エンラージ日野支店 前田





















