一級建築士事務所エンラージ|八王子市・日野市を拠点に価値のあるリノベーション&リフォームをご提案いたします
中古購入+リノベーション 着工しました!
公開日:2021/6/20
八王子店施工管理の小川です。
先週新しい現場が着工しましたので、ご紹介させて頂きます。
こちらは八王子市の分譲地内にある素敵なマンションですが、
H様はこのマンションを中古で購入し、リノベーションをご依頼下さいました。
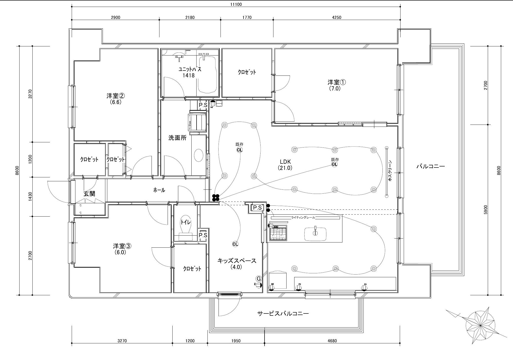
設計打合せを繰り返し、最終的にこちらのプランに決まりました。
現在キッチンがある場所をキッズスペースに変更して
キッチンを対面式に変更するプランです。
リフォーム前のキッチンは独立式なので、家事をしながらお子様に目が届く
対面式キッチンに変更したいというのが奥様の強いご希望でした。
先週から工事が始まりましたが、まず共用部の養生をしっかり行いました。
解体は大工さんにお願いしました。
T大工さんは、エンラージ創業当初からお願いしているベテランの職人さんです。
解体2日目でキッチンまで取り払われました。
各室のフローリングを貼り替えるので、古いフローリングを丁寧に剥がしています。
押入れを解体してみると、背面の壁はRC (鉄筋コンクリート) 壁でした。
でも決してあわてません。事前に竣工図を見て確認していたので想定通りでした。
この場所に新しいキッチンを配置するのですが、給排水の工事が少し大変です。
こちらの現場も松村プランナーがメイン担当ですが、
今回もリクシルさんの『リシェル』という高級キッチンを入れる予定です。
完成まで約2ヵ月の工期ですが、喜んで頂けるよう精一杯頑張ります![]()
八王子店 小川
カテゴリー:八王子店 |
















