一級建築士事務所エンラージ|八王子市・日野市を拠点に価値のあるリノベーション&リフォームをご提案いたします
戸建て全面リフォーム工事のご紹介★
公開日:2021/5/7
皆さまこんにちは![]()
ゴールデンウィークはゆっくりお休みできましたか?
私のゴールデンウィークは、父や兄弟と一緒に山梨のほうへ
ニジマス釣りへ出掛けるのが恒例でしたが・・・![]()
今年はガマンして、宅建の勉強をしながらゆっくりとお家で過ごしました!
みなさまもお身体にはお気をつけてお過ごし下さいね![]()
![]()
さて、私が担当の耐震改修・全面リフォーム工事を無事に終えることがでました![]()
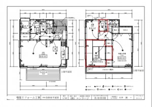
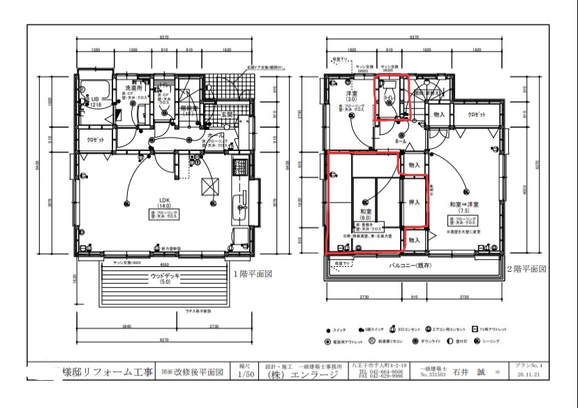
まずはリフォーム図面から。
1階は特に大きな間取り変更は無かったのですが
2階には、以前はなかったトイレを新設いたしました![]()
そして完工のお写真
●2階新設トイレ
1階のトイレは階段下にあり、新しく掛け替えた階段は勾配が緩やかなので
トイレを少し手前に移動して、窓は少し小さくしました![]()
どちらも明るくナチュラルな空間となりました![]()
内装のクロスは奥様と悩みながら決めたので良い思い出です![]()
2階の和室は東西に横長でしたが、縦長の和室にしてもう一つの和室は洋室にしました![]()
●2階和室⇒洋室
ここから1階のビフォー⇒アフターです![]()
●LDK
●洗面所・浴室
洗面台は配置を変えて使いやすくなってます
お引渡しの際には「本当に自分のお家と思えない!」と
とてもお喜びいただけて、以前に
「本当にビフォーアフターになるか想像つかないけど楽しみ」と
おっしゃっていたことを思い出し、
ビフォー・アフターを実現することができました!![]()
奥様が喜んでくださる姿は私も本当に嬉しかったです。
私や監督、職人さんにも最初から最後までたくさんのお気遣いをいただき
本当に有難うございました
大変お世話になりました![]()
またお困りのことがございましたら
スタッフ・職人一同いつでもご連絡お待ちしております![]()
エンラージ 日野支店 前田
お気軽にお電話ください![]()
◆―――――――◆―――――――◆―――――――◆―――――――◆
〚一級建築士事務所 ENLARGE〛
八王子本店:0120-512-355 (中央線西八王子駅より徒歩5分)
北野支店 :0120-186-202 (京王線北野駅より徒歩4分)
日野支店 :0120-186-203 (中央線日野駅より徒歩3分)

























