一級建築士事務所エンラージ|八王子市・日野市を拠点に価値のあるリノベーション&リフォームをご提案いたします
間取り変更&小屋裏部屋新設工事①
公開日:2020/10/20
皆様こんにちは![]()
本日は現在進行中の工事現場の様子をご紹介させて頂きます![]()
今回ご紹介するI様邸では、間取り変更と小屋裏部屋の新設工事を行います。
ご主人様のお仕事柄、生活リズムがご家族様と違うためお互いに気を使いながらの生活にお悩みでした![]()
また、お子様達が成長して個人の部屋が欲しくなる年頃ということもあり、弊社に工事をご依頼くださいました。
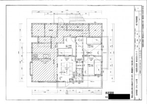
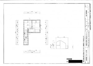
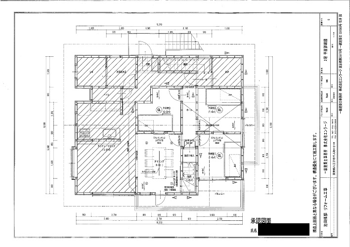
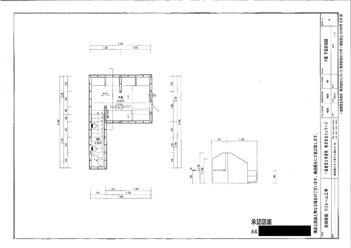
工事前の間取りとお部屋の様子です。
お暮らし方をお聞きすると、既存の間取りでは生活しにくいと感じる状況です![]()
皆様から新しい住まいへのご要望をお伺いし、間取りをご提案しました。
ご採用頂いたプランで詳細のお打合せを行い、施工していきます![]()
まずは既存間仕切り壁・収納・床等の解体作業です。
解体作業は大工さんが行っています。
I様邸をご担当されている大工さんはおちゃめな性格で、
休憩時間は他の職人さんやお施主様と楽しそうにお話しされています![]()
工事中の追加の要望にも真摯に対応くださり、とても頼もしいです![]()
小屋裏空間も同様に解体していきます。
解体すると、構造体や断熱材など普段目に見えない場所が見えてきます![]()
I様邸の建物内部は状態がとても良く、しっかりとしていて、新築時に良い施工されたのが分かります。
これからも安心して長くお住まいになれるよう、工事を進めてまいります![]()
本日はここまで。
工事中の様子は随時ご紹介してまいります![]()
*========*========*=======*=======*=======*=======*========*========*
【 一級建築士事務所ENLARGE 】
八王子本店:0120-512-355 (中央線西八王子駅より徒歩5分)
北野支店 :0120-186-202 (京王線北野駅より徒歩4分)
日野支店 :0120-186-203 (中央線日野駅より徒歩3分)
お問い合わせフォーム:https://www.enlarge.tokyo/contact
来店予約:https://www.enlarge.tokyo/raiten
資料請求:https://www.enlarge.tokyo/book
*========*========*=======*=======*=======*=======*========*========*
日野支店:かわさき🐰
























