一級建築士事務所エンラージ|八王子市・日野市を拠点に価値のあるリノベーション&リフォームをご提案いたします
中古購入リノベーション 夢の詰まった家
最終更新日:2023/5/30 公開日:2020/2/16
こんにちは![]()
最近は暖かい日が続きますね。
今日は、中古物件を購入して自分好みにリノベーションをするお話です!
N様ご夫婦はお子様が2人になられた頃から一軒家を買おう!とマイホーム計画をたて、
夢を膨らませながら土地や家を探していました。
お探し中に夢はどんどん膨らみ!
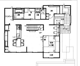
「駅まで15分以内の平坦な道のりで広いリビングにお庭も欲しいし、車も2台止めたいな~」
「キッチンはオープンにして、キッチンの隣にダイニングテーブルを置くのも良いな」
「洗面所と脱衣室は別々にしたいし、パントリーもファミリークローゼットも和室スペースも欲しい」
でも予算には限りがある・・・・・![]()
しかし!N様お気に入りの中古物件を探して、リフォームプランも出してもらい、
いざ物件申込みをしよう!と心に決めました。
・・・・・が・・・売約済みという悔しい思いをしました![]()
良い物件はタイミングとスピードです![]()
そこからエンラージにご来店![]()
エンラージは不動産業・設計事務所・工務店の顔を持つので、
物件探しからご同行し、気に入った物件がありましたら、
約1~2週間でリフォームのプランとお見積りを作成します![]()
中古購入リノベ―ションには、
購入申込み⇒売買契約⇒住宅ローン申込み⇒決済 (お引き渡し)
リフォームの打ち合わせ⇒仕様決め⇒請負契約⇒着工⇒完成
⇒ご入居とやる事が沢山ありますが、
ぜーんぶまとめてお任せください![]()
![]()
N様も物件案内からエンラージに全てお任せ頂き、
無事に物件を購入されました![]()
今は工事進行中です!素敵になるお家にお引越しされるのを楽しみにお待ちください![]()
北野店 森松











