一級建築士事務所エンラージ|八王子市・日野市を拠点に価値のあるリノベーション&リフォームをご提案いたします
軽量鉄骨 2階全面間取り変更リフォーム②
公開日:2019/6/3
皆様こんにちは☺
先日、東京国立博物館に行ってまいりました。
狩野派の作品目当てでしたが、どの美術作品も素晴らしく、呼吸するのも忘れるくらい見入ってしまいました![]()
建築とはまた違う分野ですが、美術・工芸品を目の当たりにし、とても良い刺激となりました![]()
東京都美術館で開催されているクリムト展も気になるので、近々赴こうかと計画しています![]()
前回の日野店ブログからご紹介しております、軽量鉄骨造のリフォーム工事。
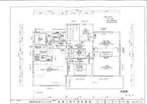
施工前はこのような間取りでしたが・・・
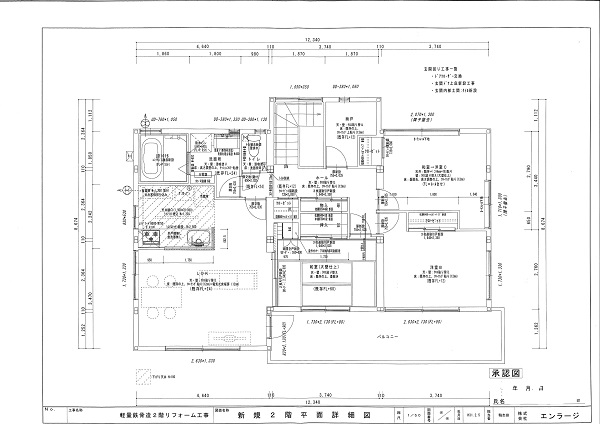
このように間取りを変更して工事を進めていきます![]()
工事の途中でお施主様がご入居されるので、まずは生活に必要な水廻りから施工していきます。
既存トイレを撤去し・・・
浴室も解体し・・・
洗面台も撤去します。
洗面台は幅の広いサイズのものを入れるので、既存の窓は潰します![]()
浴室はサイズアップするので、間仕切り壁を解体しています。
そして新しく間仕切りを大工さんが作ります![]()
![]()
大工工事のあとは新しい水廻り設備を入れたり、内装工事に入ります。
脱衣所・お手洗いの壁仕上げには、 “スイス漆喰” をご採用いただいております![]()
ここからは水廻りの工事後の様子です![]()
お手洗いには新しく収納を設け、手摺付の紙巻き器を取り付けています。
幅の広い洗面台にしたことで、使い勝手がよくなりました![]()
スイス漆喰は滑らかで、さりげない存在感のある仕上がりに![]()
暖房換気扇もあり、ボタン1つで浴槽を自動でおそうじしてくれる仕様になっていたり、とっても機能的な浴室![]()
手すりや浴槽の縁に手をかけられる溝があるため、入浴時の動作負担を軽減してくれます![]()
ご入居前にお風呂・洗面台・お手洗いの工事が完了![]()
スイス漆喰の白さの中で洗面台・浴室の青色がアクセントとなり、爽やかで清潔感のある空間となりました。
浴室は、背の高いご主人様も足を伸ばして入浴できるサイズに![]()
キッチン部分は位置移動や大工工事が必要だったため、お引越し後の工事になります![]()
この後はお施主様の生活スペースを確保しながら工事を進めていきます。
次回はLDKのビフォーアフターをご紹介いたします👷
日野支店:かわさき🐇





















