一級建築士事務所エンラージ|八王子市・日野市を拠点に価値のあるリノベーション&リフォームをご提案いたします
中古購入リノベーション施工中!
公開日:2017/9/24
こんにちは、日野支店の榎本です![]()
先日、書店で素敵な雑誌を見つけました。
建築系の雑誌なのですが、ワンちゃん特集なんです![]()
ワンちゃんの種類やサイズ、特性などもまとまっていて、
更にワンちゃんはどんなお家が良いか良く分かります![]()
家を作るワンちゃん好きにはお薦めの一冊です![]()
ーーーーーーーーーーーーーーーーーーーーーーーーーーーーーーーーーーーーーーーーーーーーーーーーーーーーーーーーーーーーーーーーーーーーー★✨
さて、私が担当しています現場の紹介をしたいと思います![]()
現在施工中のS様は中古物件を購入し、
1階をご希望の間取りへリノベーションします。
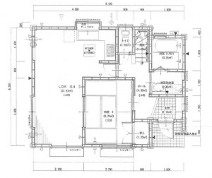
購入時の間取りがこちら ➡ ➡ ➡
もともと建売りだったようで、
間取りとしてはよくあるものかと思います![]()
もちろん、この形でも充分お住まいになれますが、
和室などがちょっとデッドスペースになるかも…![]()
ということで、
⇩⇩⇩⇩⇩
.
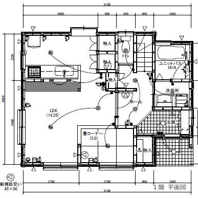
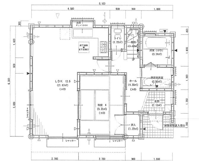
このような間取りに変更します![]()
.
LDKを広げ、和室は畳コーナーとして縮小。
キッチンも対面式にして、家族の間の
コミュニケーションが取りやすい形に![]()
.
玄関にも物入れを設けたりと、使い勝手を
重視した間取りになりました![]()
.
.
.
.
.
.
.
次回、内装も仕上がった様子をご案内します![]()
素敵になりましたのでお楽しみに![]()
カテゴリー:日野店 |














