一級建築士事務所エンラージ|八王子市・日野市を拠点に価値のあるリノベーション&リフォームをご提案いたします
マンション全面リフォーム☆
公開日:2017/8/3
こんにちは![]()
今回ご紹介する施工事例は、【マンション全面リフォーム】![]()
![]()
全体的に明るくしたいというご希望を、間取り変更を含む全面リフォームで叶えました![]()
マンションリフォームは、限られた空間をいかに有効に使うかがポイント![]()
間仕切り開閉壁などを利用して今ある空間を活かし、
さらに、なるべく広く明るく見える色彩でまとめました![]()
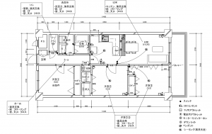
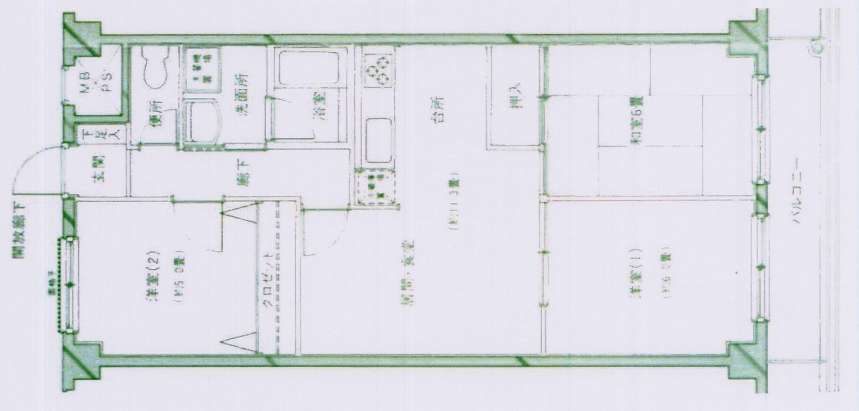
Before&Afterを、まずは間取りから見ていきましょう![]()
☆間取り
●Before
以前は扉を開けないとキッチンに光が入らない間取りでした。
和室と洋室は壁で区切られているため、暗さが気になります…![]()
●After
和室洋室間の壁を撤去し、間仕切り開閉壁を採用![]()
キッチンはオープンキッチンに![]()
光のさしこむ工夫がされた間取りです![]()
次に、詳細を見ていきましょう![]()
☆リビングダイニング
●Before
↑でもお話しした通り、
和室と洋室が壁で区切られているため、暗い印象があります![]()
●After
既存壁を取り払い、自由に開閉できる間仕切り開閉壁(採光パネル付き)にしました![]()
和室を洋室化して同じ床材で仕上げることで、広く一体感のある空間に![]()
![]()
☆キッチン
●Before
キッチンは壁付・北向きで、背面側にある扉を開けないと日光が入らない間取りでした![]()
●After
間仕切壁を撤去し、キッチンを対面化・南向きにしたことで
光に恵まれた明るいオープンキッチンになりました![]()
![]()
キッチン照明は、日野支店ショールームと同じペンダント照明![]()
日野支店の雰囲気を気に入ってご採用いただきました![]()
☆廊下
●Before→●After
正面が壁で暗かったのをドアに変更
随分と明るくなりましたね![]()
☆浴室
最新のユニットバスに交換しました![]()
●Before
●After
☆洗面化粧台
洗面所内装とともに一新しました![]()
●Before
●After
☆その他
①室内空間をすこしでも広くとるため、ダクトスペースを小さくしました![]()
②窓に面しないお部屋はインテリア採光ユニットを使って明るくしました![]()
さて、いかがでしたでしょうか![]()
お部屋が明るくなると、心まで晴れやかになりますね![]()
完工の際には、お客様が同じマンションのご友人を呼ばれて
大盛り上がりだったとのこと![]()
当社では、リフォームすることでお客様がより良い暮らしを送れるよう
精一杯のご提案をさせていただきます![]()
住まいに関するお悩み・疑問などございましたら、お気軽にご相談ください![]()
日野支店
うえのやま


























