一級建築士事務所エンラージ|八王子市・日野市を拠点に価値のあるリノベーション&リフォームをご提案いたします
お子様の成長に合わせて“enlarge”(増築)
最終更新日:2017/7/6 公開日:2017/7/4
こんにちは!
今日はすごく蒸し暑いですね![]()
![]()
熱中症に注意ですね![]()
皆さん『リフォーム・リノベーション』と聞くと、どういったことを想像しますか![]()
?
・水廻り設備が古くなったから、新しいものに交換したい。
・家族の顔を見ながら料理がしたいから、壁側に向いているキッチンを対面型にしたい。
・中古物件を購入して、自分好みにフルリノベーションしてから住みたい。
様々なリフォーム・リノベーションがありますね。
今回ご紹介するおうちは、
ご家族が多く、さらに1人お子さんが増えたこともあり、
広く使いやすくといった理由から、増築をご希望でした。
未だ築4年という築浅のお宅です![]()
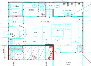
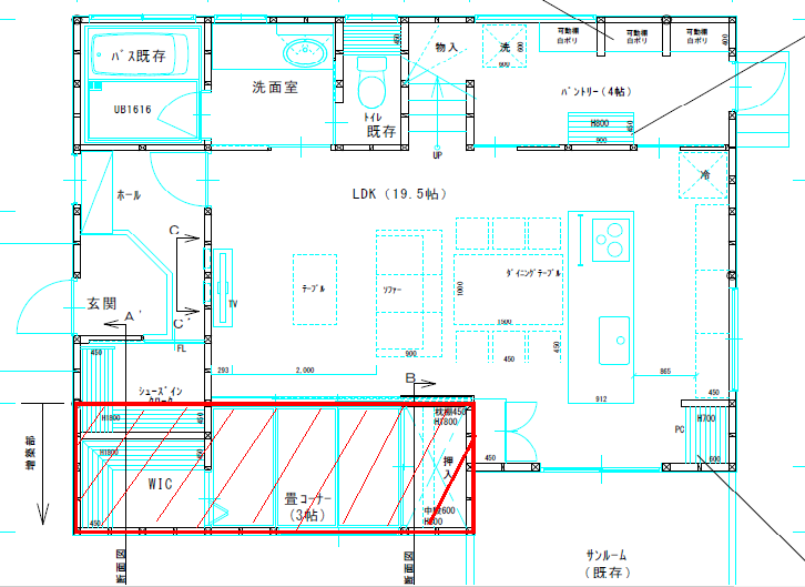
Before
左下の畳コーナーとシューズインクロークが増築部分です。
今回の増築は面積が10㎡未満(6帖分)なので、建築確認申請は要りません。
廊下からLDKにかけて全体的に壁を取り、
大きいひとつのLDKにしました。
これで4人のお子様を見ながら、家事ができそうですね。
リビング Before
After
外観 Before
After
増築部分は色に変化をつけ、仕上げました。
<玄関廻り>
カラフルな板目調のアクセントクロスが目を引きます。
<収納スペース>
収納をたくさんできるように、というのもご希望でした。
<ニッチ>
リモコンをすっきりとまとめて、さらにデザイン的にもなりました。
今の不満やお困りごとを解決して、より暮らしやすくするには?
そういった面を考え、設計士や女性プランナー、現場監督が一丸となってチームで問題を解決いたします。
住まいの悩み、どんなことでもご相談ください![]()
![]()
カテゴリー:日野店 |















