施工事例
Seko
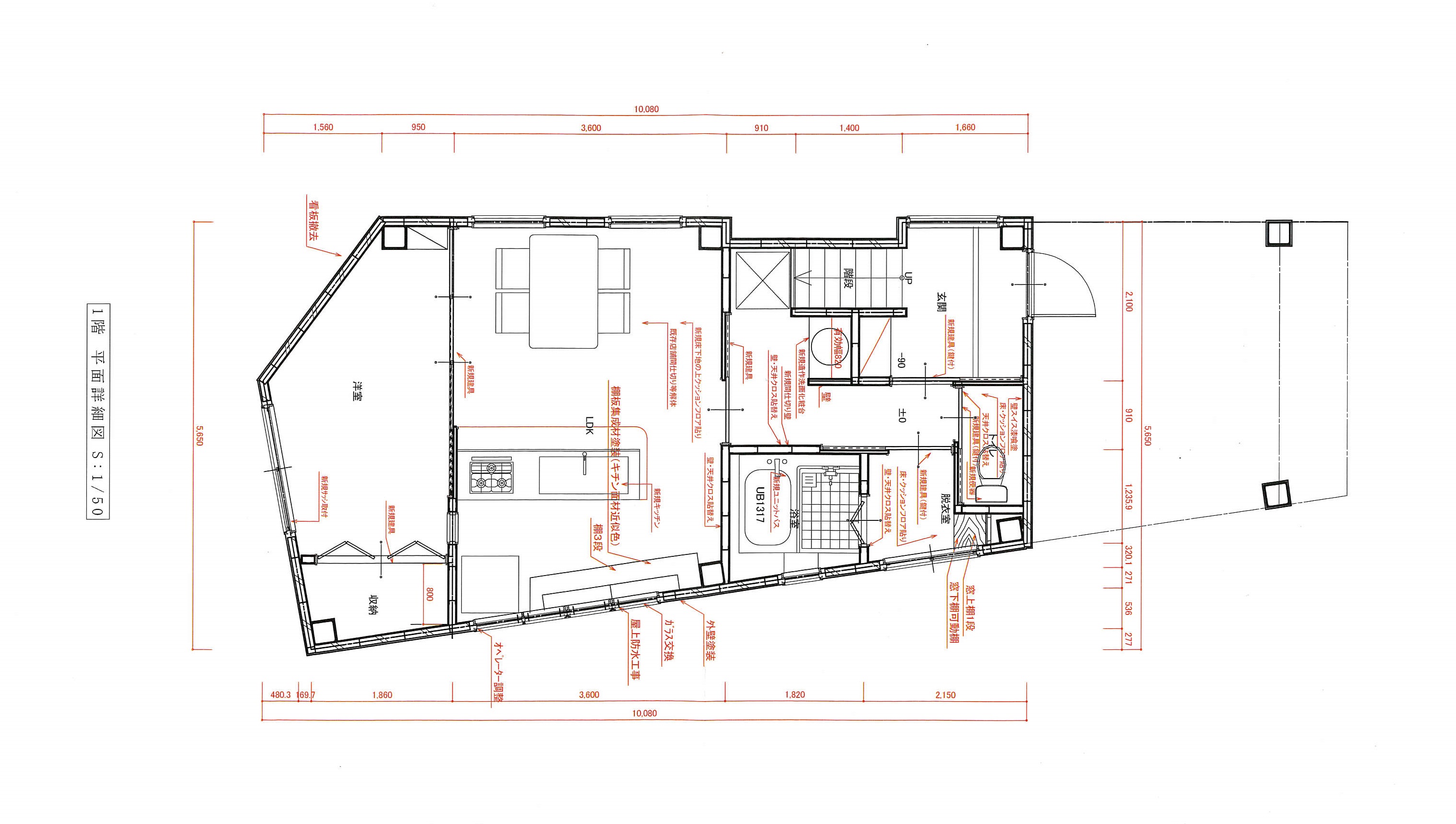
店舗から住まいへ、憧れのカフェ風ダイニングキッチンを実現!
鉄骨造3階建てのビルを所有されているI様。以前は1階を店舗(スナック)として営業されていたのですが、お店を閉店したため、住居スペースへとコンバージョンする事になりました。以前の店舗の趣も少し残しつつ、奥様が憧れだった“Café風ダイニングキッチン”を実現する事ができ、『大変満足!』のお言葉を頂く事ができました。
| 工事内容 | 1階店舗リノベーション |
|---|---|
| リフォーム期間 | 約2ヶ月 |
| 価格 | 約1000万円 |
ダイニングキッチン
水廻り
脱衣室・廊下
お客様の声
初めてのリフォームでしたので、不安や心配などもありましたが、イメージ以上に可愛く素敵な家ができ、大満足です。エンラージのスタッフさんや職人さんにも子供達を可愛がってもらい、すっかり慣れて子供も嬉しそうでした。工事中、追加工事や色々なお願いをして、お世話をかけてしまいましたが、とても仕事が早く、嫌な顔もせず、最後までお付き合いしてくれて本当にありがとうございました。エンラージさんに決めて本当に良かったです。是非またリフォームする際には、エンラージさんにお願いしたいと思います。









鉄骨造の建物で色々と制限はありましたが、I様ご家族のライフスタイルに合ったベストなご提案が出来たと思います。デザインも気に入ってくださり、ありがとうございます。最後に「イメージ以上に素敵な仕上がり」とおっしゃって頂けたことは、心から嬉しく思います。I様ご家族の幸せをお祈り申し上げます。