一級建築士事務所エンラージ|八王子市・日野市を拠点に価値のあるリノベーション&リフォームをご提案いたします
施工事例
Seko
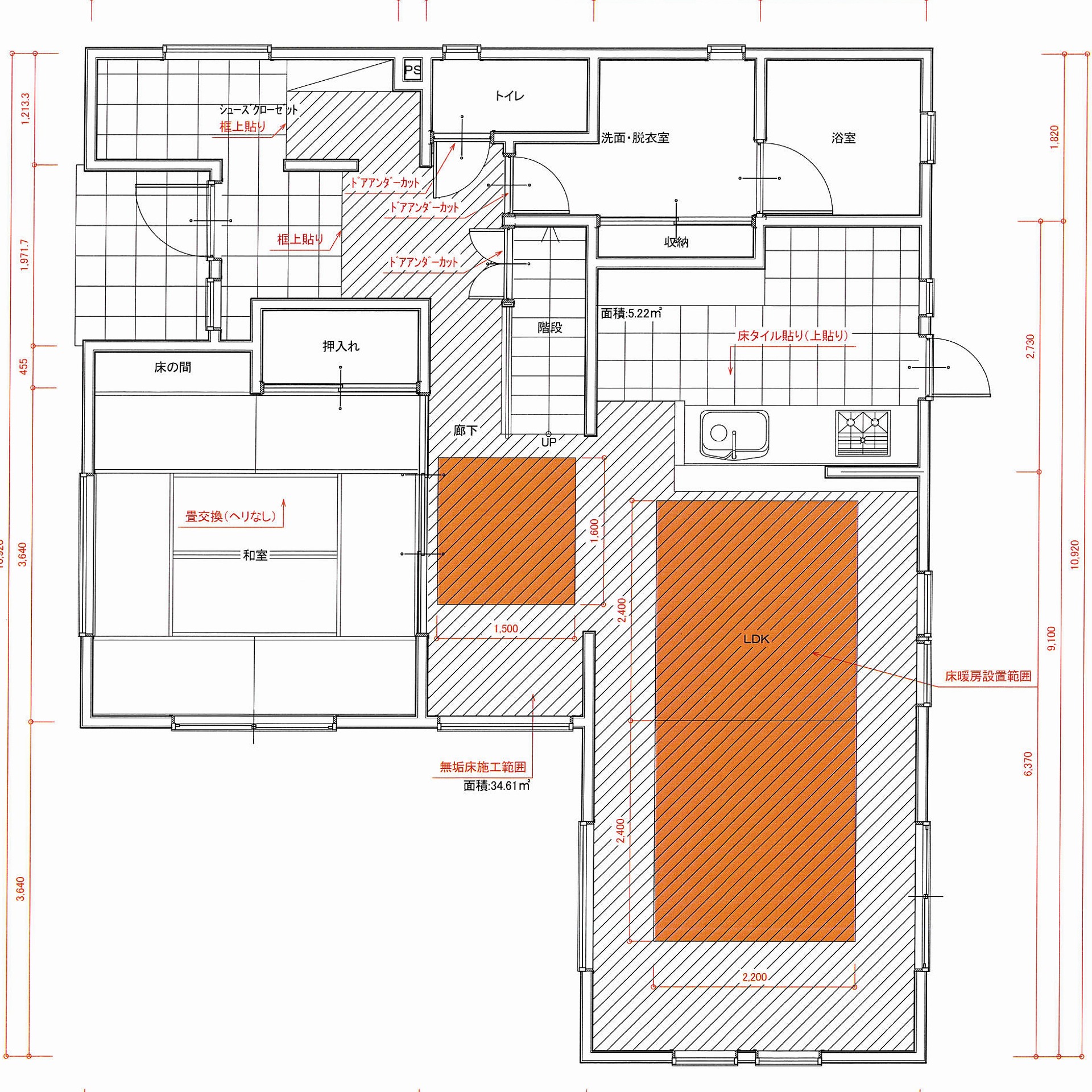
こだわりの無垢床と床暖房で、心安らぐ温かい住まいへ ♪あったかいんだからぁ♪
リビングに開放的な吹き抜けがある素敵なN様邸。しかし以前より無垢床への憧れと温かくて快適な床暖房を切望されていました。ホームプロに紹介依頼を出したものの、他社では無垢の床材を軒並み断られてしまい、夢を諦めかけていたそうです。そんな中、無垢床材と床暖房の施工が可能な当社と出会い、即お選び頂きました。
| 工事内容 | 無垢床貼り、床暖房設置 |
|---|---|
| リフォーム期間 | 約1週間 |
| 価格 | 約220万円 |
N様ご夫婦がお選びになったのは“アッシュ”の無垢フローリング。ウォールナットより明るく、木目が鮮明で美しいのが特徴です。表面に植物オイルが塗りこまれており、素足でも心地良い質感です。
無垢床&床暖房リフォーム
お客様の声
無垢材の床暖房に対応していただき感謝しております。電気代が少し心配ですが、仕上がりにはとても満足しています。機会があれば次回もよろしくお願いします。









こだわりのアッシュの無垢床で、さらに素敵なお住まいになりました。自宅が無垢のフローリングなんて本当に羨ましいです。肌触りや木の匂いを感じながら、快適な無垢床ライフを楽しんでくださいね! プランナー早崎