一級建築士事務所エンラージ|八王子市・日野市を拠点に価値のあるリノベーション&リフォームをご提案いたします
鉄骨造の2階をスケルトンにして、ホテルライクにリノベーション!
| お名前 | S 様 | 費用 | 約1350万円 |
|---|---|---|---|
| 工事内容 | 鉄骨造の2階フルリノベーション | ご住所 | 昭島市 |
| 工期 | 約2ヵ月 | 間取り | 3LDK(2階部分) |
S様邸は1階が店舗で2階が住居になっている鉄骨造の建物です。今回は2階全面のリフォームをお任せいただきました。使いにくい間取りを全面的に変更し、広いリビングやご家族全員の個室を確保しました。S様のお好みは、白を基調としたホテルライクなデザインでした。内装以外にも造作収納など、こだわり満載のリノベーションになりました。
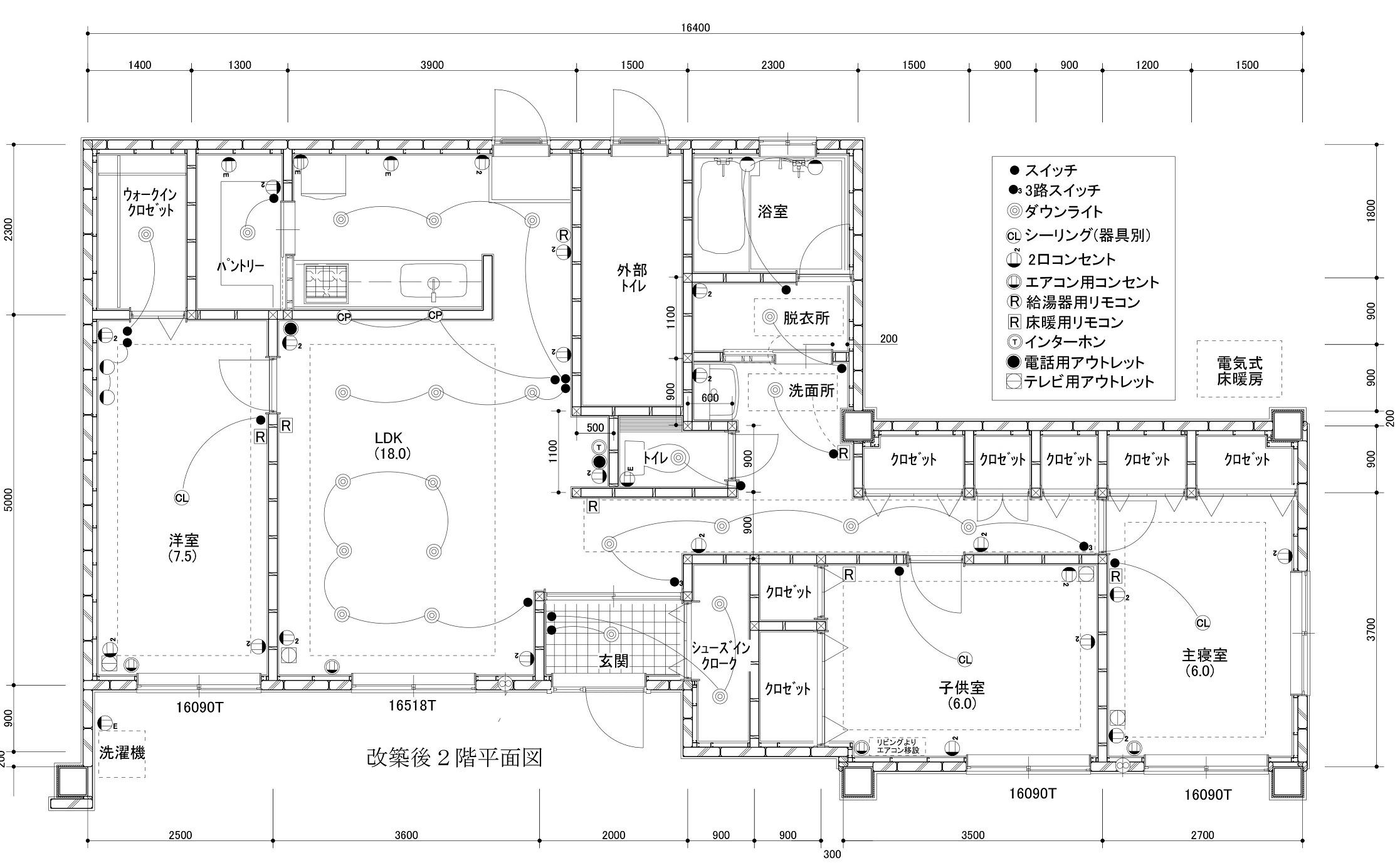
間取り図
白を基調としたホテルライクな内装
ダイニングの床は温かみがあるメープルのフローリングで、電気式床暖房を設置しました。ホテルライクの空間演出のために寝室には間接照明を採用。奥様のお部屋のブラケットライトもとても気に入っていただけました。
間取り変更によりリビングを広げる事ができました。
キッチンからはリビング全体を見渡せます。奥様が料理をしながらご家族と会話を楽しむことができる、開放的な対面キッチンです。






































奥様から『ホテルのような真っ白な空間にしたい!』というご要望を受けご提案をさせていただきました。
キーワードは『ホテル』と『白』。ホテルのように居心地がよく、高級感のある空間を作ってあげたい!そう思いました。
なので、白は多く使うけれど、白の緊張感を出しすぎないように、床は穏やかな雰囲気のメイプルを使用し、小物で高級感を出すように心がけました。 プランナー二重作