一級建築士事務所エンラージ|八王子市・日野市を拠点に価値のあるリノベーション&リフォームをご提案いたします
施工事例
Seko
自然素材にこだわった健康で安心の住まい
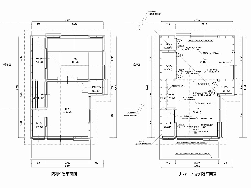
T様は以前に1階の全面リフォームをされ、今回は手付かずだった2階の全面リフォームを!という事でご相談いただきました。小さいお子様でも安心して暮らせる家をテーマに自然素材をふんだんに使用したリフォームとなりました。
| 工事内容 | 2階自然素材内装リフォーム |
|---|---|
| リフォーム期間 | 約1ヶ月 |
| 価格 | 約330万円 |
既存の障子を生かし、和室から和モダンな洋室へ。 立体感ある勾配天井と見応えのある梁がアクセントとなっています。 壁は珪藻土、床はカバの無垢フローリングで温かみが感じられます









内装は素材やデザインにこだわったエンラージらしいリフォームとなりました。私自身、自宅のLDKを自然素材でリフォームして、毎日自然素材の良さを実感しながら快適に家族と暮らしています。その良さをT様にもぜひ実感して頂ければ幸いです。