施工事例

Seko

コミュニケーション弾むデザイナーズオフィス

IMG_1216

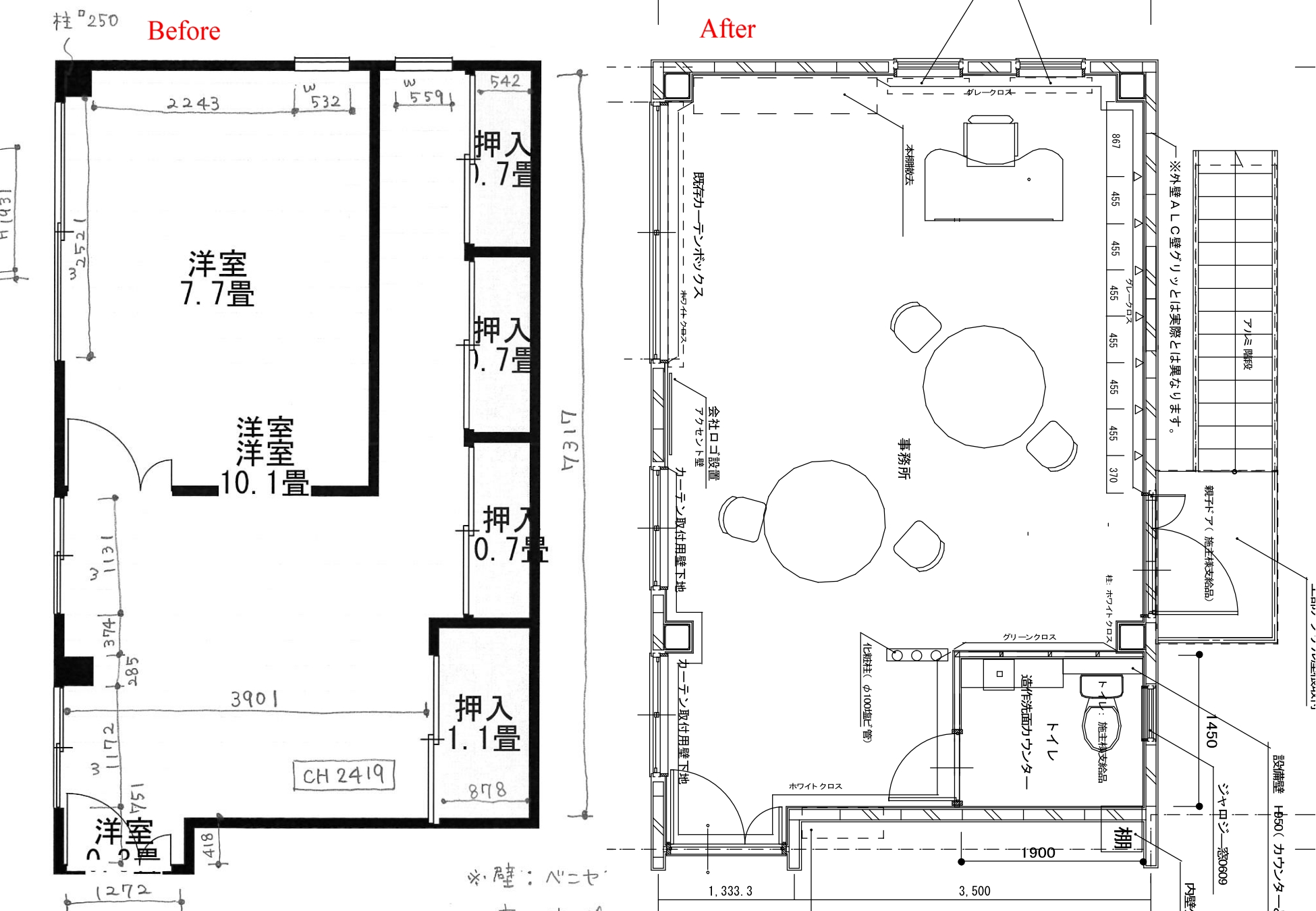
M様はご自身でITの会社を起業するために、ご自宅の洋室(約18帖)をオフィスに改装したいとのご要望でした。

工事内容 オフィス化内装工事
リフォーム期間 1ヶ月
価格 約330万円

IMG_1654

洋室の間仕切り壁を撤去して、広々としたワンルームを実現。会社のイメージカラーである鮮やかなグリーンがポイントです。

オフィス内装

00プラン

図面(ビフォーアフター)

IMG_1657

黒のシートでスタイリッシュな空間を演出

IMG_1658

広々と開放的なオフィス空間

IMG_1661

T様こだわりの無垢材アート

IMG_1651

清潔感ある白で統一したレストルーム

IMG_1648

シンプルな水栓と美しい形状のボウルを組み合わせた造作手洗い器。

玄関・外階段

CIMG3047

アフター

IMG_0692

ビフォー

現場写真

CIMG2553

外階段取付け準備

CIMG2554

玄関ドア開口中

CIMG2642

外階段設置中

CIMG2424

解体中

CIMG2779

木工事

CIMG3041

内装仕上げ中

担当者より

オフィスにする洋室が2階だったこともあり、玄関ドア設置のためにALC(軽量鉄骨造)の壁に開口を作ったり、外階段を新設したりと大がかりな工事でしたが、経験豊かな現場監督や職人さんのチームワークによって無事完工することが出来ました。窓枠のペンキ塗りはM様親子で塗られたりと楽しい現場でした。