一級建築士事務所エンラージ|八王子市・日野市を拠点に価値のあるリノベーション&リフォームをご提案いたします
府中市・エンラージデザインのおしゃれな美容室
-
両面ガラスに囲まれた開放的なフロア全景。フロア全体に光が満ち溢れ、明るく広々とした空間。内装は、西海岸のリゾート風のコーディネートで穏やかな波の音が聞こえてきそうなリラックスできる美容院に仕上がりました。
-
-
広いフロアには1台1台のカット台をゆとりをもって配置。ビル7階という好立地ならではの眺めも最高です。
-
-
カットスペースの奥にはシャンプーコーナー
-
-
-
-
-
シャンプー台側から望む全景。一番奥がエントランスと受付です。
-
受付カウンターの仕上げにはスイス漆喰を使用し、テーマである西海岸の海を貝殻やヒトデなどを使ってアートに表現しました。
-
真っ白なスイス漆喰をベースにさざ波を青いモザイクタイルで表現。タイルは施主ご本人様が貼りました。
-
お待ちいただく間もゆっくり寛いでもらいたいという心遣い溢れる待合スペース。カウチソファーの正面には壁掛けTVを設置。
| お名前 | S 様 | 費用 | 約1100万円 |
|---|---|---|---|
| 工事内容 | 店舗内装設備工事 | ご住所 | 府中市 |
| 工期 | 約2ヶ月 | 間取り |
美容室にお勤めされていたS様。独立してご友人と一緒に開業したいとご希望で当社にご相談を頂きました。テナントビルの7階ワンフロアにおしゃれな美容室をオープンしました。
デザインパース
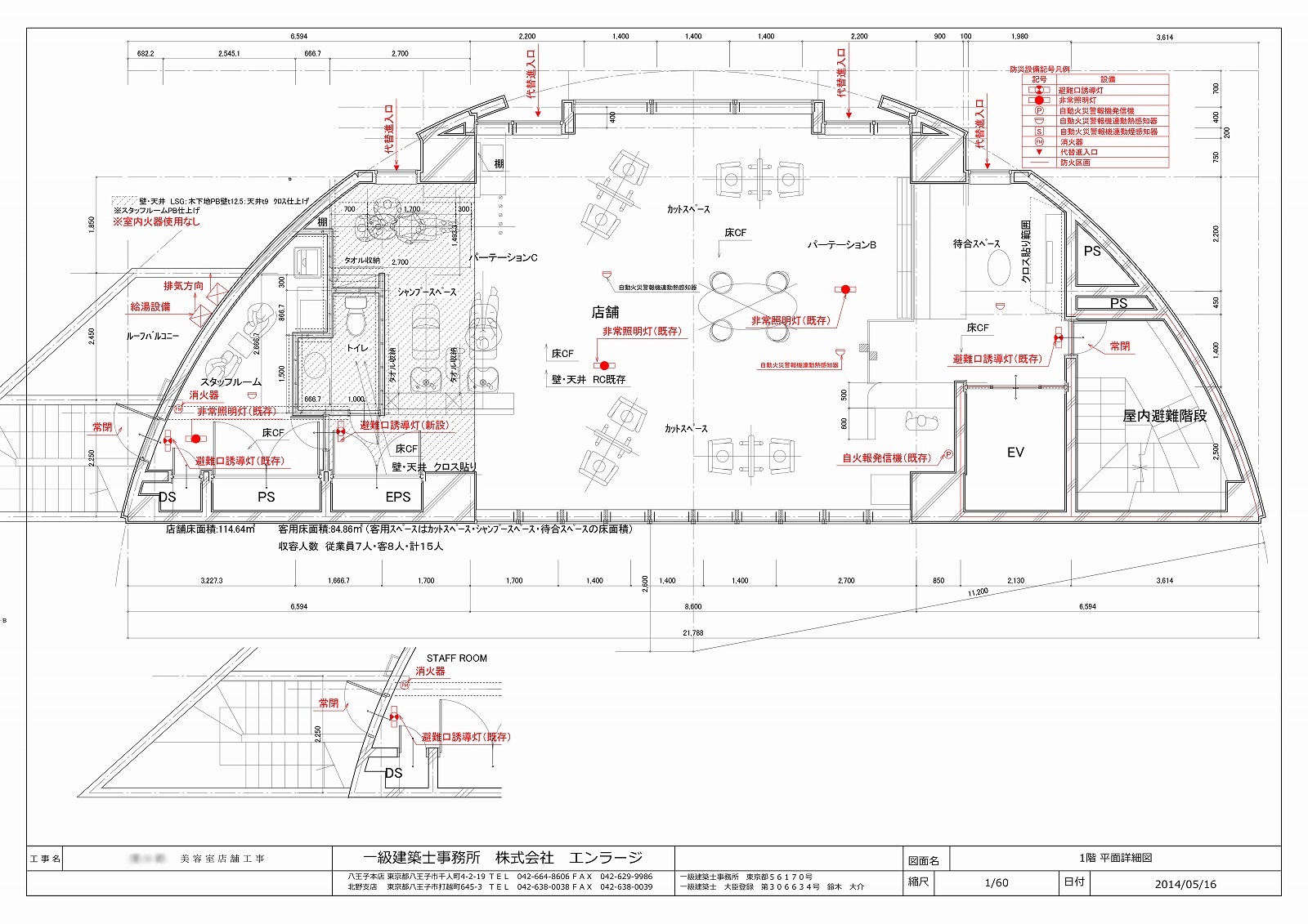
間取り図
「西海岸のリゾート」がテーマ
両面ガラスに囲まれた開放的なフロアで、全体に光が満ち溢れ明るく広々とした空間です。内装は、「西海岸のリゾート」をテーマにコーディネート。穏やかな波の音が聞こえてきそうなリラックスできる美容院に仕上がりました。
こだわりの受付カウンター
受付カウンターの仕上げにはスイス漆喰を使用し、テーマである「西海岸の海」の貝殻やヒトデなどを使ってアートに表現。さざ波の模様は施主ご本人様が青いモザイクタイルを貼ってつくりました。
施工前
担当者より
関連施工事例
-
西海岸風・何度も足を運びたくなるヘッドスパ&アイラッシュサロン
多摩市 La belle mer様 費用:(店舗につき非公開)
当社でご自宅のリノベーションをさせていただいたI様からのご紹…

-
旧耐震の木造クリニックを安全・安心・快適に全面改修!
八王子市 Sこどもクリニック様 費用:(非公開)
八王子市の『Sこどもクリニック』様は、30年以上前から診療を…

-
和モダンな雰囲気で、身も心も癒されるリラクゼーションサロン
日野市 I様 費用:約180万円
地元の日野市でリラクゼーションサロンを開業するに伴い、店舗の…

-
築40年の歯医者さんをおしゃれに全面改装して、リニューアルオープン!
八王子市 S歯科医院様 費用:(非公開)
八王子市千人町のS歯科医院さんは、築40年を超える昔ながらの…






























S様、この度は当社に店舗造作リノベーションをお任せいただき、誠にありがとうございました。また、S様とご友人様の開業に向けてのお手伝いをさせて頂けた事も大変嬉しく思います。当社は大規模リフォームや造作が得意で、こだわりが強かったS様のご要望を形にする事ができました。ご自身のお店で今後益々ご活躍される事をお祈り申し上げます。